Проект одноэтажного дома Дом id-114375
Дом подходит для:
Площадь
188 м 2
Размер дома:
22x17
Этажей:
1
Спален:
3
Санузел:
2
Гараж:
Нет
Баня:
Нет
Терраса:
Нет
Панорамные окна:
Нет
Мастер-спальня:
Нет
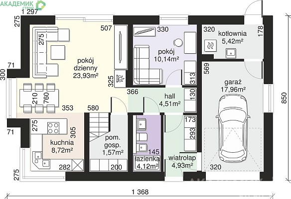
Планировка
Характеристики
- Общая площадь: 188 м2
- Жилая площадь: 131 м2
- Количество этажей: 1
- Гараж: На 2 машины
- Размер: 22x17
- Фундамент: Дома с ленточным фундаментом
Отправьте свои контакты и мы расчитаем вам смету
Скорее всего вам подойдут следующие проекты домов:
Проект одноэтажного дома Дом id-119409
Для большой семьи
Дом подходит для:
Дом подходит для:
Проект одноэтажного дома Дом id-126081
Для большой семьи
Дом подходит для:
Дом подходит для:
Проект одноэтажного дома Дом id-124724
Для большой семьи
Дом подходит для:
Дом подходит для:


























