Проект двухэтажного дома Дом id-115385
Дом подходит для:
Площадь
294 м 2
Размер дома:
17x15
Этажей:
2
Спален:
4
Санузел:
2
Гараж:
Нет
Баня:
Нет
Терраса:
Нет
Панорамные окна:
Нет
Мастер-спальня:
Нет
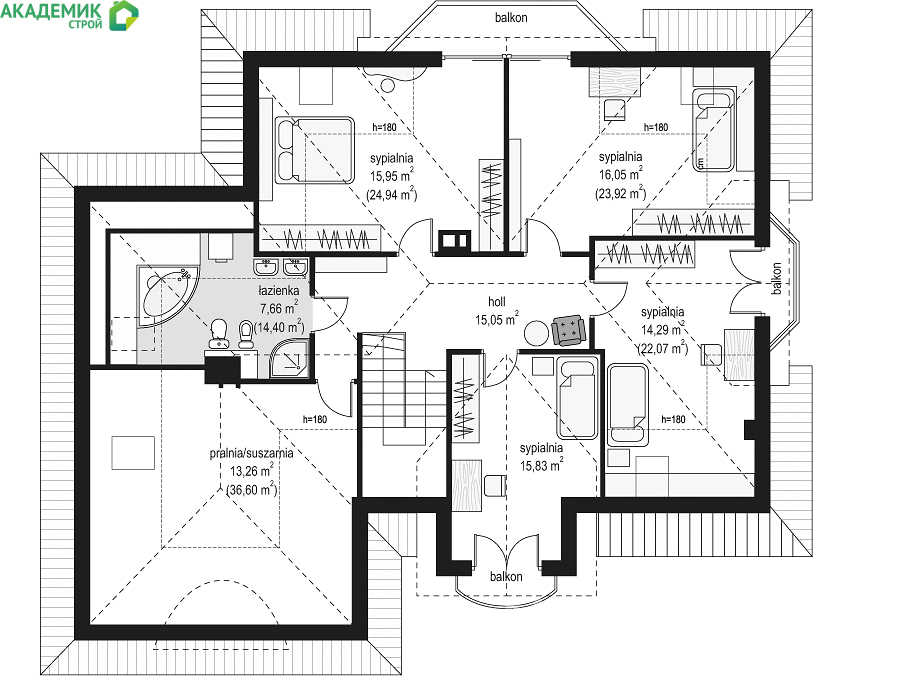
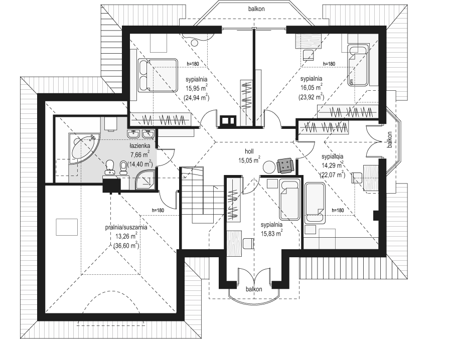
Планировка
Характеристики
- Общая площадь: 294 м2
- Жилая площадь: 208 м2
- Количество этажей: 2
- Гараж: На 2 машины
- Площадь кровли: 341 м2
- Размер: 17x15
- Фундамент: Дома с ленточным фундаментом
Отправьте свои контакты и мы расчитаем вам смету
Скорее всего вам подойдут следующие проекты домов:
Проект двухэтажного дома Дом id-124607
Для большой семьи
Дом подходит для:
Дом подходит для:
Проект двухэтажного дома Дом id-115538
Для большой семьи
Дом подходит для:
Дом подходит для:
Проект двухэтажного дома Дом id-115507
Для большой семьи
Дом подходит для:
Дом подходит для:


























