Проект двухэтажного дома Дом id-115915
Дом подходит для:
Площадь
451 м 2
Размер дома:
14x14
Этажей:
3
Спален:
5
Санузел:
4
Гараж:
Нет
Баня:
Нет
Терраса:
Нет
Панорамные окна:
Нет
Мастер-спальня:
Нет
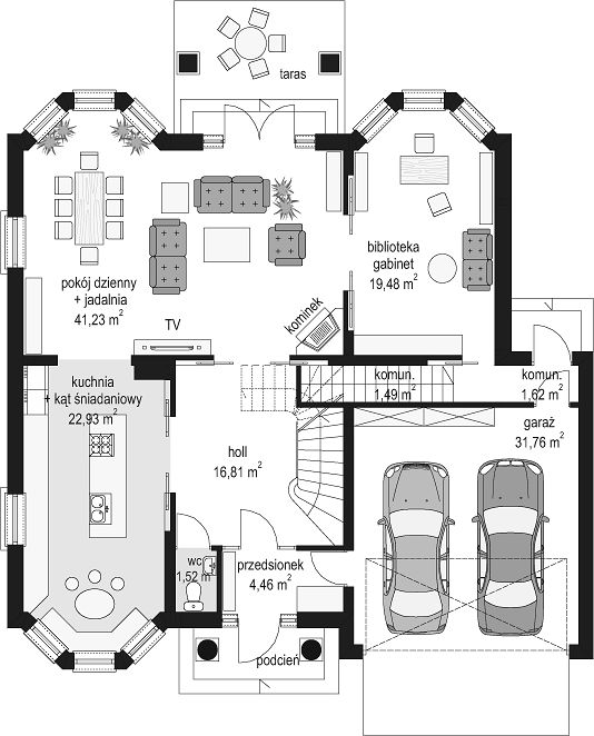
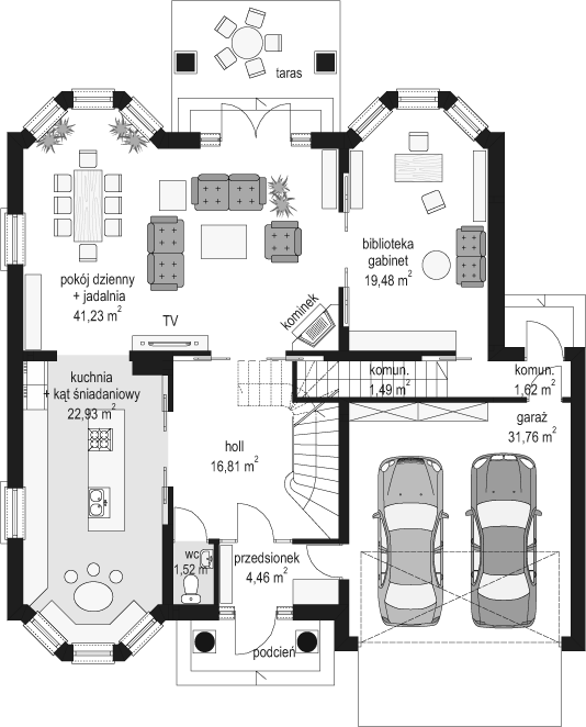
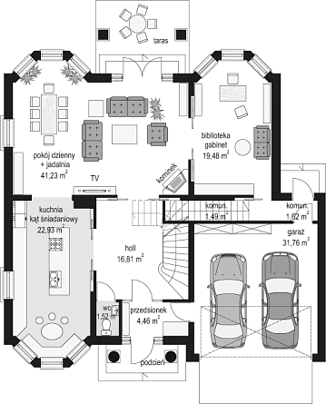
Планировка
Характеристики
- Общая площадь: 451 м2
- Жилая площадь: 218 м2
- Количество этажей: 3
- Гараж: На 2 машины
- Площадь кровли: 215,13 м2
- Размер: 14x14
- Фундамент: Дома с ленточным фундаментом
Отправьте свои контакты и мы расчитаем вам смету
Скорее всего вам подойдут следующие проекты домов:
Дом подходит для:
Проект двухэтажного дома Дом id-92523
Для большой семьи
Дом подходит для:
Дом подходит для:

















