Проект двухэтажного дома Дом id-116691
Дом подходит для:
Площадь
247 м 2
Размер дома:
18x11
Этажей:
2
Спален:
5
Санузел:
2
Гараж:
Нет
Баня:
Нет
Терраса:
Нет
Панорамные окна:
Нет
Мастер-спальня:
Нет
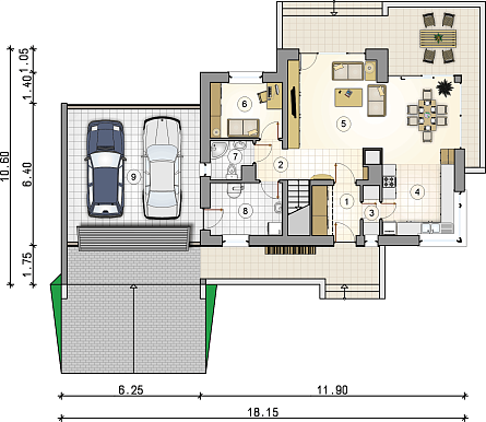
Планировка
Характеристики
- Общая площадь: 247 м2
- Жилая площадь: 128 м2
- Количество этажей: 2
- Гараж: На 2 машины
- Площадь кровли: 155 м2
- Размер: 18x11
- Фундамент: Дома с ленточным фундаментом
Отправьте свои контакты и мы расчитаем вам смету
Скорее всего вам подойдут следующие проекты домов:
Проект двухэтажного дома Дом id-119826
Для большой семьи
Дом подходит для:
Дом подходит для:
Проект двухэтажного дома Дом id-111647
Для большой семьи
Дом подходит для:
Дом подходит для:
Проект двухэтажного дома Дом id-112874
Для большой семьи
Дом подходит для:
Дом подходит для:





















