Проект одноэтажного дома Дом id-122640
Дом подходит для:
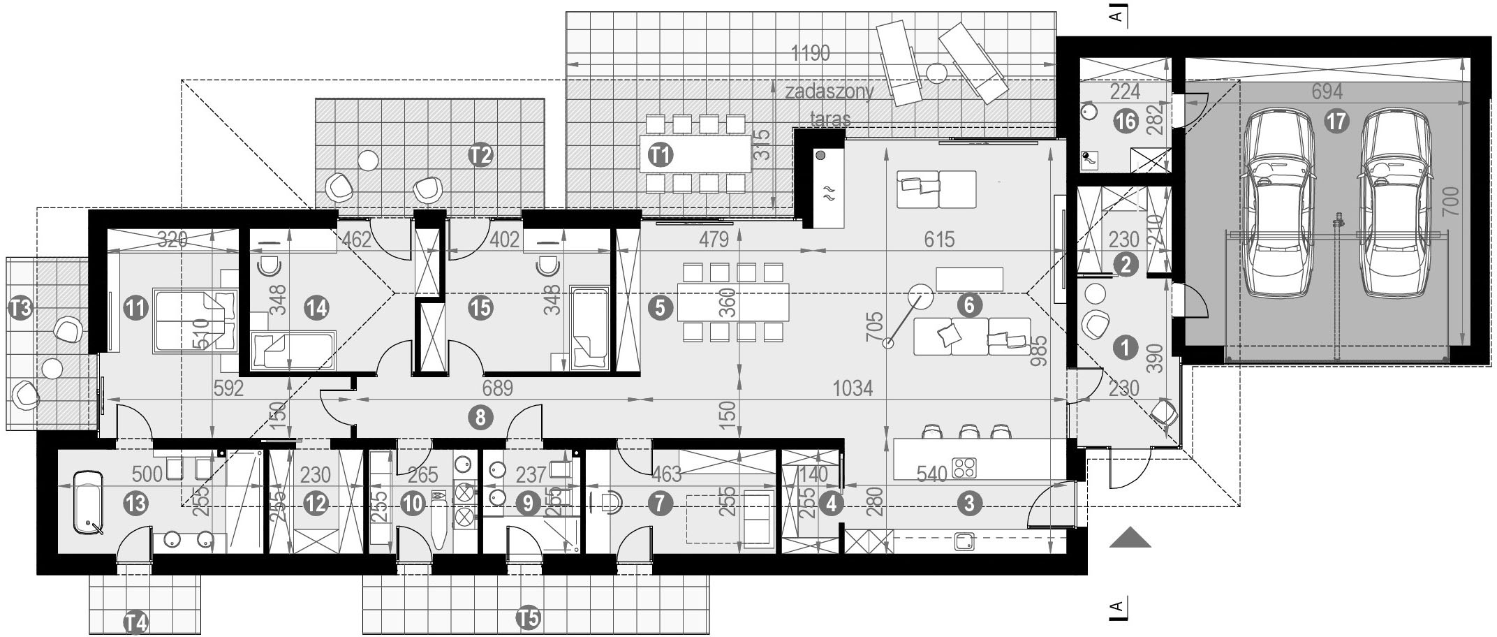
Площадь
317 м 2
Размер дома:
35x13
Этажей:
1
Спален:
4
Санузел:
2
Гараж:
Нет
Баня:
Нет
Терраса:
Нет
Панорамные окна:
Нет
Мастер-спальня:
Нет
Планировка
Характеристики
- Общая площадь: 317 м2
- Жилая площадь: 209 м2
- Количество этажей: 1
- Гараж: На 2 машины
- Размер: 35x13
- Фундамент: Дома с ленточным фундаментом
Отправьте свои контакты и мы расчитаем вам смету
Скорее всего вам подойдут следующие проекты домов:
Проект одноэтажного дома Дом id-121478
Для большой семьи
Дом подходит для:
Дом подходит для:
Проект одноэтажного дома Дом id-114997
Для большой семьи
Дом подходит для:
Дом подходит для:
Проект одноэтажного дома Дом id-53290
Для большой семьи
Дом подходит для:
Дом подходит для:


















