Проект одноэтажного дома Дом id-124296
Дом подходит для:
Площадь
201 м 2
Размер дома:
15x19
Этажей:
1
Спален:
4
Санузел:
2
Гараж:
Нет
Баня:
Нет
Терраса:
Нет
Панорамные окна:
Нет
Мастер-спальня:
Нет
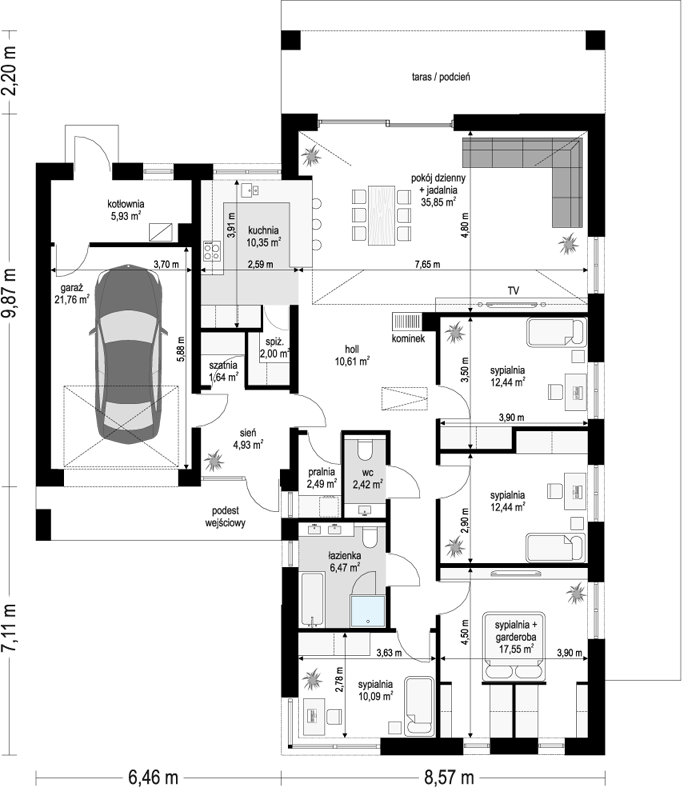
Планировка
Характеристики
- Общая площадь: 201 м2
- Жилая площадь: 135 м2
- Количество этажей: 1
- Гараж: На 1 машину
- Площадь кровли: 282,75 м2
- Размер: 15x19
- Фундамент: Дома с ленточным фундаментом
Отправьте свои контакты и мы расчитаем вам смету
Скорее всего вам подойдут следующие проекты домов:
Проект одноэтажного дома Дом id-116839
Для большой семьи
Дом подходит для:
Дом подходит для:
Проект одноэтажного дома Дом id-115667
Семья с двумя детьми
Дом подходит для:
Дом подходит для:
Проект одноэтажного дома Дом id-116744
Семья с двумя детьми
Дом подходит для:
Дом подходит для:
























