Проект двухэтажного дома Дом id-124616
Дом подходит для:
Площадь
67 м 2
Размер дома:
8x6
Этажей:
2
Спален:
2
Санузел:
1
Гараж:
Нет
Баня:
Нет
Терраса:
Нет
Панорамные окна:
Нет
Мастер-спальня:
Нет
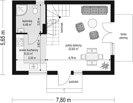
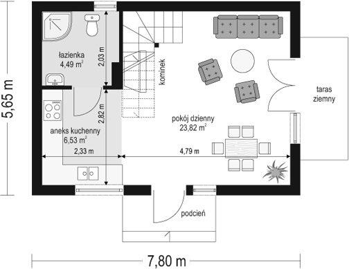
Планировка
Характеристики
- Общая площадь: 67 м2
- Жилая площадь: 53 м2
- Количество этажей: 2
- Гараж: Без гаража
- Площадь кровли: 96,96 м2
- Размер: 8x6
- Фундамент: Дома с ленточным фундаментом
Отправьте свои контакты и мы расчитаем вам смету
Скорее всего вам подойдут следующие проекты домов:
Проект двухэтажного дома Дом id-112885
Семья с одним ребенком
Дом подходит для:
Дом подходит для:
Проект двухэтажного дома Дом id-112879
Семья с одним ребенком
Дом подходит для:
Дом подходит для:
Проект двухэтажного дома Дом id-126000
Семья с одним ребенком
Дом подходит для:
Дом подходит для:


























