Проект двухэтажного дома Дом id-125009
Дом подходит для:
Площадь
82 м 2
Размер дома:
10x7
Этажей:
2
Спален:
2
Санузел:
2
Гараж:
Нет
Баня:
Нет
Терраса:
Нет
Панорамные окна:
Нет
Мастер-спальня:
Нет
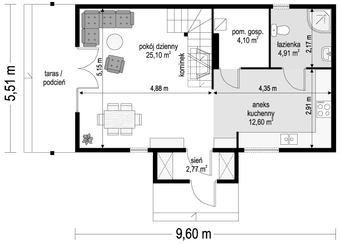
Планировка
Характеристики
- Общая площадь: 82 м2
- Жилая площадь: 73 м2
- Количество этажей: 2
- Гараж: Без гаража
- Площадь кровли: 125,24 м2
- Размер: 10x7
- Фундамент: Дома с ленточным фундаментом
Отправьте свои контакты и мы расчитаем вам смету
Скорее всего вам подойдут следующие проекты домов:
Проект двухэтажного дома Дом id-112885
Семья с одним ребенком
Дом подходит для:
Дом подходит для:
Проект двухэтажного дома Дом id-112879
Семья с одним ребенком
Дом подходит для:
Дом подходит для:
Проект двухэтажного дома Дом id-79988
Семья с двумя детьми
Дом подходит для:
Дом подходит для:

























