Проект одноэтажного дома Дом id-25118
Дом подходит для:
Площадь
233 м 2
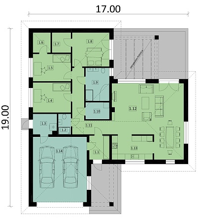
Размер дома:
17x19
Этажей:
1
Спален:
3
Санузел:
2
Гараж:
Нет
Баня:
Нет
Терраса:
Нет
Панорамные окна:
Нет
Мастер-спальня:
Нет
Планировка
Характеристики
- Общая площадь: 233 м2
- Жилая площадь: 145 м2
- Количество этажей: 1
- Гараж: На 2 машины
- Площадь кровли: 351,50 м2
- Размер: 17x19
- Фундамент: Дома с ленточным фундаментом
Отправьте свои контакты и мы расчитаем вам смету
Скорее всего вам подойдут следующие проекты домов:
Проект одноэтажного дома Дом id-116744
Семья с двумя детьми
Дом подходит для:
Дом подходит для:
Проект одноэтажного дома Дом id-119409
Для большой семьи
Дом подходит для:
Дом подходит для:
Проект одноэтажного дома Дом id-126081
Для большой семьи
Дом подходит для:
Дом подходит для:

























