Проект одноэтажного дома Дом id-27805
Дом подходит для:
Площадь
288 м 2
Размер дома:
19x15
Этажей:
1
Спален:
3
Санузел:
2
Гараж:
Нет
Баня:
Нет
Терраса:
Нет
Панорамные окна:
Нет
Мастер-спальня:
Нет
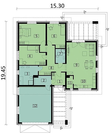
Планировка
Характеристики
- Общая площадь: 288 м2
- Жилая площадь: 136 м2
- Количество этажей: 1
- Гараж: На 2 машины
- Площадь кровли: 248,26 м2
- Размер: 19x15
- Фундамент: Дома с ленточным фундаментом
Отправьте свои контакты и мы расчитаем вам смету
Скорее всего вам подойдут следующие проекты домов:
Проект одноэтажного дома Дом id-117989
Для большой семьи
Дом подходит для:
Дом подходит для:
Проект одноэтажного дома Дом id-116744
Семья с двумя детьми
Дом подходит для:
Дом подходит для:
Проект одноэтажного дома Дом id-118227
Семья с двумя детьми
Дом подходит для:
Дом подходит для:



















