Проект двухэтажного дома Дом id-35330
Дом подходит для:
Площадь
453 м 2
Размер дома:
15x21
Этажей:
2
Спален:
5
Санузел:
3
Гараж:
Нет
Баня:
Нет
Терраса:
Нет
Панорамные окна:
Нет
Мастер-спальня:
Нет
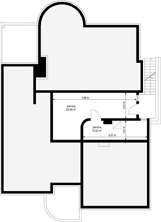
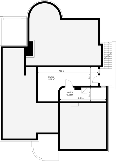
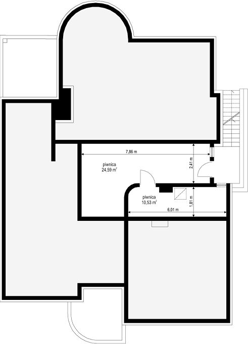
Планировка
Фасады
О проекте
Двухэтажный дом площадью 453 м² (жилых — 328 м²) с пятью комнатами и тремя санузлами, а также гаражом на две машины. Просторные жилые зоны, отдельные спальни и рабочий кабинет делают этот проект отличным выбором для большой семьи, ценящей масштаб и возможность зонировать пространство под любые нуждыГарантии: 16 лет гарантии
Характеристики
- Общая площадь: 453 м2
- Жилая площадь: 328 м2
- Количество этажей: 2
- Гараж: На 2 машины
- Площадь кровли: 331,60 м2
- Размер: 15x21
- Фундамент: Дома с ленточным фундаментом
Отправьте свои контакты и мы расчитаем вам смету
Скорее всего вам подойдут следующие проекты домов:
Проект двухэтажного дома Дом id-124360
Для большой семьи
Дом подходит для:
Дом подходит для:
Проект двухэтажного дома Дом id-112234
Для большой семьи
Дом подходит для:
Дом подходит для:
Дом подходит для:


























