Проект двухэтажного дома Дом id-35372
Дом подходит для:
Площадь
419 м 2
Размер дома:
16x11
Этажей:
2
Спален:
5
Санузел:
3
Гараж:
Нет
Баня:
Нет
Терраса:
Нет
Панорамные окна:
Нет
Мастер-спальня:
Нет
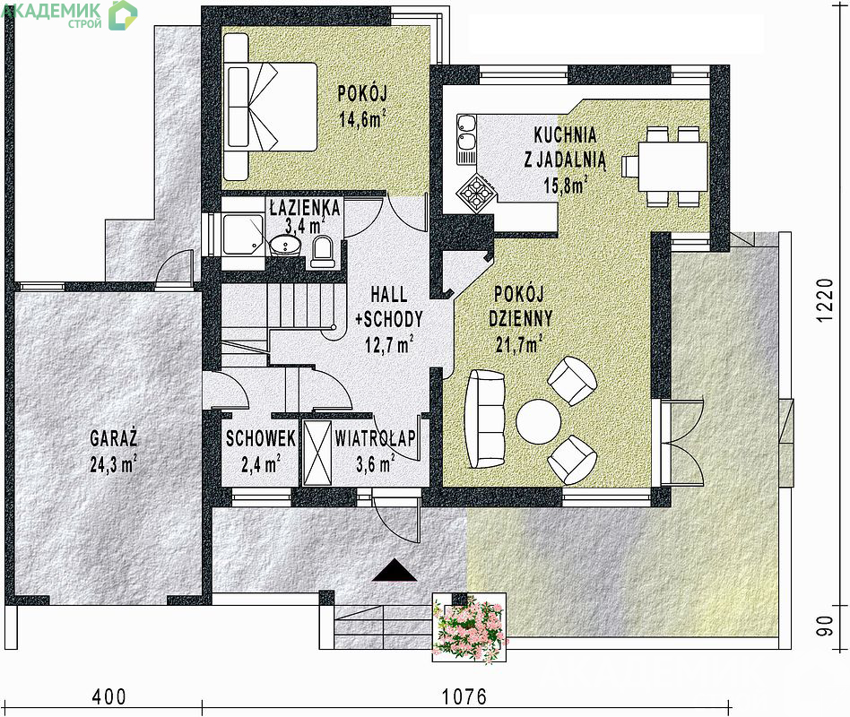
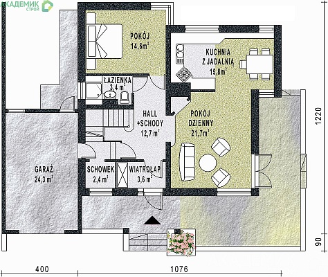
Планировка
Фасады
О проекте
Современный двухэтажный дом из газобетона площадью 419 м² с жилой зоной 237 м² предлагает комфортное проживание для семьи. Пять спален, три санузла и гараж на три машины обеспечивают удобство. Ленточный фундамент и металлочерепичная кровля делают этот проект стильным и надежным.Гарантии: 16 лет гарантии
Характеристики
- Общая площадь: 419 м2
- Жилая площадь: 237 м2
- Количество этажей: 2
- Гараж: На 3 машины
- Площадь кровли: 222,20 м2
- Размер: 16x11
- Фундамент: Дома с ленточным фундаментом
Отправьте свои контакты и мы расчитаем вам смету
Скорее всего вам подойдут следующие проекты домов:
Проект двухэтажного дома Дом id-114539
Для большой семьи
Дом подходит для:
Дом подходит для:
Проект двухэтажного дома Дом id-115002
Для большой семьи
Дом подходит для:
Дом подходит для:
Проект двухэтажного дома Дом id-117188
Для большой семьи
Дом подходит для:
Дом подходит для:




















