Проект двухэтажного дома Дом id-35509
Дом подходит для:
Площадь
376 м 2
Размер дома:
20x23
Этажей:
2
Спален:
2
Санузел:
2
Гараж:
Нет
Баня:
Нет
Терраса:
Нет
Панорамные окна:
Нет
Мастер-спальня:
Нет
Планировка
Фасады
О проекте
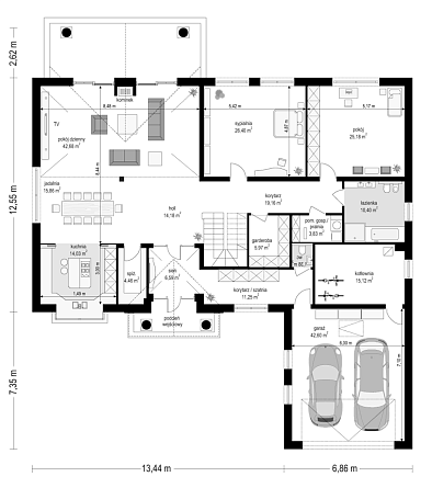
Двухэтажный дом площадью 201 м² с двумя комнатами и двумя санузлами — отличный вариант для небольшой семьи, ценящей простор. Гараж на две машины решает вопрос с парковкой и хранением. Большая гостиная и кухня создают комфортное пространство для жизни и отдыха. Газобетонные стены и кровля из металлочерепицы гарантируют тепло и долговечность.Гарантии: 16 лет гарантии
Характеристики
- Общая площадь: 376 м2
- Жилая площадь: 201 м2
- Количество этажей: 2
- Гараж: На 2 машины
- Площадь кровли: 433,59 м2
- Размер: 20x23
- Фундамент: Дома с ленточным фундаментом
Отправьте свои контакты и мы расчитаем вам смету
Скорее всего вам подойдут следующие проекты домов:
Проект двухэтажного дома Дом id-124229
Для большой семьи
Дом подходит для:
Дом подходит для:
Проект двухэтажного дома Дом id-35230
Для большой семьи
Дом подходит для:
Дом подходит для:
Проект двухэтажного дома Дом id-35549
Для большой семьи
Дом подходит для:
Дом подходит для:
























