Проект двухэтажного дома Дом id-36007
Дом подходит для:
Площадь
155 м 2
Размер дома:
7x11
Этажей:
2
Спален:
3
Санузел:
2
Гараж:
Нет
Баня:
Нет
Терраса:
Нет
Панорамные окна:
Нет
Мастер-спальня:
Нет
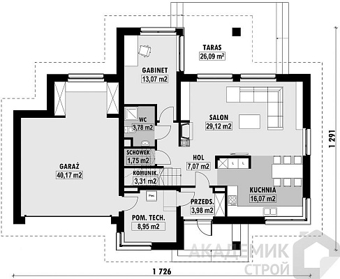
Планировка
Характеристики
- Общая площадь: 155 м2
- Жилая площадь: 89 м2
- Количество этажей: 2
- Гараж: Без гаража
- Площадь кровли: 154 м2
- Размер: 7x11
- Фундамент: Дома с ленточным фундаментом
Отправьте свои контакты и мы расчитаем вам смету
Скорее всего вам подойдут следующие проекты домов:
Проект двухэтажного дома Дом id-115521
Семья с двумя детьми
Дом подходит для:
Дом подходит для:
Проект двухэтажного дома Дом id-31377
Семья с двумя детьми
Дом подходит для:
Дом подходит для:
Проект двухэтажного дома Дом id-49624
Для большой семьи
Дом подходит для:
Дом подходит для:

















