Проект двухэтажного дома Дом id-39558
Дом подходит для:
Площадь
453 м 2
Размер дома:
15x20
Этажей:
2
Спален:
4
Санузел:
3
Гараж:
Нет
Баня:
Нет
Терраса:
Нет
Панорамные окна:
Нет
Мастер-спальня:
Нет
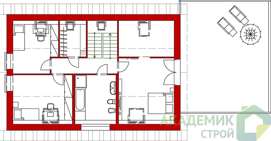
Планировка
Характеристики
- Общая площадь: 453 м2
- Жилая площадь: 138 м2
- Количество этажей: 2
- Гараж: На 2 машины
- Площадь кровли: 352,73 м2
- Размер: 15x20
- Фундамент: Дома с ленточным фундаментом
Отправьте свои контакты и мы расчитаем вам смету
Скорее всего вам подойдут следующие проекты домов:
Проект двухэтажного дома Дом id-110178
Для большой семьи
Дом подходит для:
Дом подходит для:
Проект двухэтажного дома Дом id-111689
Для большой семьи
Дом подходит для:
Дом подходит для:
Проект двухэтажного дома Дом id-120261
Для большой семьи
Дом подходит для:
Дом подходит для:





















