Проект двухэтажного дома Дом id-54119
Дом подходит для:
Площадь
393 м 2
Размер дома:
21x13
Этажей:
2
Спален:
4
Санузел:
2
Гараж:
Нет
Баня:
Нет
Терраса:
Нет
Панорамные окна:
Нет
Мастер-спальня:
Нет
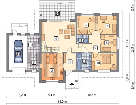
Планировка
Характеристики
- Общая площадь: 393 м2
- Жилая площадь: 183 м2
- Количество этажей: 2
- Гараж: На 1 машину
- Размер: 21x13
- Фундамент: Дома с ленточным фундаментом
Отправьте свои контакты и мы расчитаем вам смету
Скорее всего вам подойдут следующие проекты домов:
Проект двухэтажного дома Дом id-110178
Для большой семьи
Дом подходит для:
Дом подходит для:
Проект двухэтажного дома Дом id-115538
Для большой семьи
Дом подходит для:
Дом подходит для:
Проект двухэтажного дома Дом id-111689
Для большой семьи
Дом подходит для:
Дом подходит для:





















