Проект двухэтажного дома Дом id-54405
Дом подходит для:
Площадь
195 м 2
Размер дома:
12x15
Этажей:
2
Спален:
4
Санузел:
3
Гараж:
Нет
Баня:
Нет
Терраса:
Нет
Панорамные окна:
Нет
Мастер-спальня:
Нет
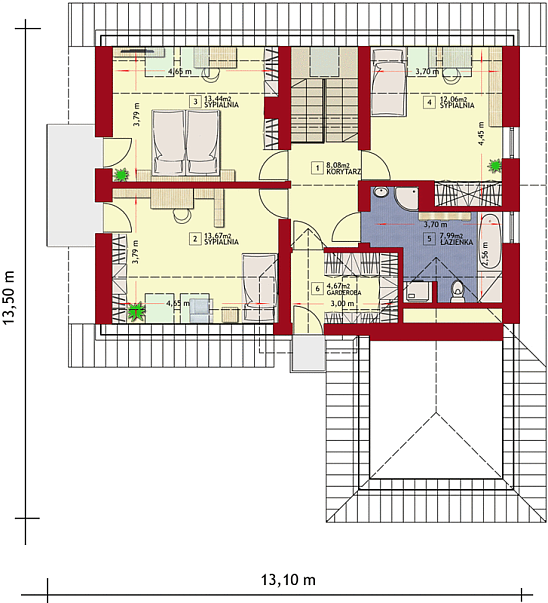
Планировка
Характеристики
- Общая площадь: 195 м2
- Жилая площадь: 129 м2
- Количество этажей: 2
- Гараж: На 1 машину
- Площадь кровли: 220,45 м2
- Размер: 12x15
- Фундамент: Дома с ленточным фундаментом
Отправьте свои контакты и мы расчитаем вам смету
Скорее всего вам подойдут следующие проекты домов:
Проект двухэтажного дома Дом id-114826
Для большой семьи
Дом подходит для:
Дом подходит для:
Проект двухэтажного дома Дом id-114932
Для большой семьи
Дом подходит для:
Дом подходит для:
Проект двухэтажного дома Дом id-112770
Для большой семьи
Дом подходит для:
Дом подходит для:























