Проект двухэтажного дома Дом id-54597
Дом подходит для:
Площадь
331 м 2
Размер дома:
12x16
Этажей:
3
Спален:
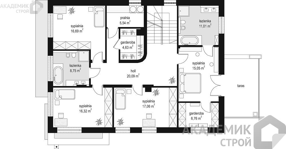
5
Санузел:
4
Гараж:
Нет
Баня:
Нет
Терраса:
Нет
Панорамные окна:
Нет
Мастер-спальня:
Нет
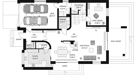
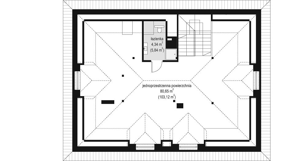
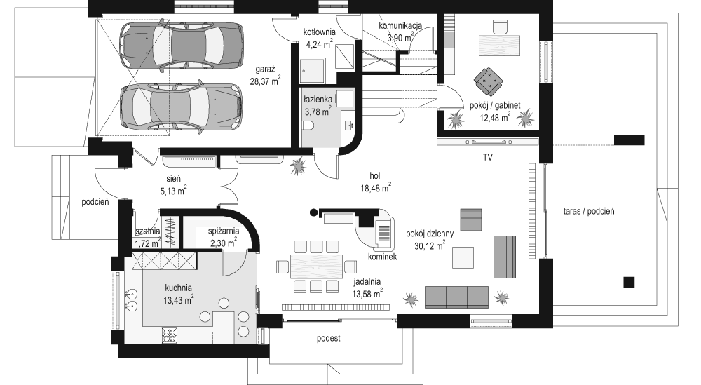
Планировка
Фасады
О проекте
Дом, созданный для комфортного семейного быта. Дом даёт 331 м² для отдыха, творчества и общения. Никаких излишеств — только нужные 226 м². Когда важно пространство и порядок — 4 санузла. Крыша из металлочерепица подчёркивает современный облик дома. Фундамент обеспечивает надежность и долговечность конструкции. В доме предусмотрено 5 спален, что важно для комфорта.Гарантии: 16 лет гарантии
Характеристики
- Общая площадь: 331 м2
- Жилая площадь: 226 м2
- Количество этажей: 3
- Гараж: На 2 машины
- Площадь кровли: 301 м2
- Размер: 12x16
- Фундамент: Дома с ленточным фундаментом
Отправьте свои контакты и мы расчитаем вам смету
Скорее всего вам подойдут следующие проекты домов:
Проект двухэтажного дома Дом id-115400
Для большой семьи
Дом подходит для:
Дом подходит для:
Проект двухэтажного дома Дом id-92523
Для большой семьи
Дом подходит для:
Дом подходит для:

















