Проект двухэтажного дома Дом id-63249
Дом подходит для:
Площадь
378 м 2
Размер дома:
23x14
Этажей:
2
Спален:
4
Санузел:
4
Гараж:
Нет
Баня:
Нет
Терраса:
Нет
Панорамные окна:
Нет
Мастер-спальня:
Нет
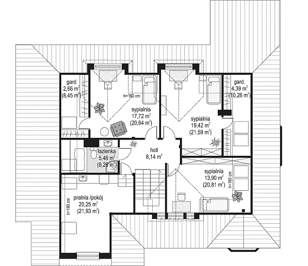
Планировка
Характеристики
- Общая площадь: 378 м2
- Жилая площадь: 243 м2
- Количество этажей: 2
- Гараж: На 2 машины
- Площадь кровли: 353 м2
- Размер: 23x14
- Фундамент: Дома с ленточным фундаментом
Отправьте свои контакты и мы расчитаем вам смету
Скорее всего вам подойдут следующие проекты домов:
Проект двухэтажного дома Дом id-57002
Для большой семьи
Дом подходит для:
Дом подходит для:
Проект двухэтажного дома Дом id-84908
Для большой семьи
Дом подходит для:
Дом подходит для:
Проект двухэтажного дома Дом id-35176
Для большой семьи
Дом подходит для:
Дом подходит для:





















