Проект двухэтажного дома Дом id-65099
Дом подходит для:
Площадь
397 м 2
Размер дома:
19x14
Этажей:
2
Спален:
5
Санузел:
3
Гараж:
Нет
Баня:
Нет
Терраса:
Нет
Панорамные окна:
Нет
Мастер-спальня:
Нет
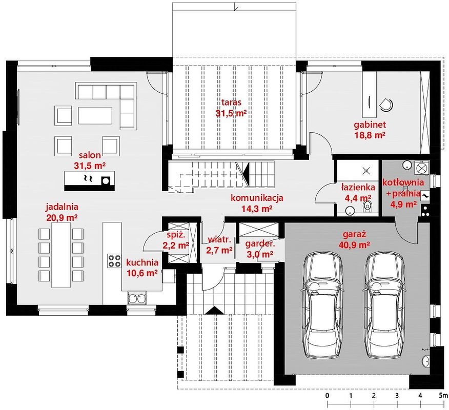
Планировка
Характеристики
- Общая площадь: 397 м2
- Жилая площадь: 255 м2
- Количество этажей: 2
- Гараж: На 2 машины
- Площадь кровли: 278 м2
- Размер: 19x14
- Фундамент: Дома с ленточным фундаментом
Отправьте свои контакты и мы расчитаем вам смету
Скорее всего вам подойдут следующие проекты домов:
Проект двухэтажного дома Дом id-110178
Для большой семьи
Дом подходит для:
Дом подходит для:
Проект двухэтажного дома Дом id-115538
Для большой семьи
Дом подходит для:
Дом подходит для:
Проект двухэтажного дома Дом id-111689
Для большой семьи
Дом подходит для:
Дом подходит для:





















