Проект одноэтажного дома Дом id-65149
Дом подходит для:
Площадь
204 м 2
Размер дома:
17x8
Этажей:
1
Спален:
3
Санузел:
2
Гараж:
Нет
Баня:
Нет
Терраса:
Нет
Панорамные окна:
Нет
Мастер-спальня:
Нет
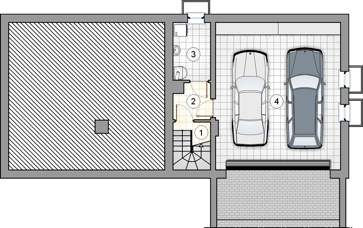
Планировка
Характеристики
- Общая площадь: 204 м2
- Жилая площадь: 104 м2
- Количество этажей: 1
- Гараж: На 2 машины
- Площадь кровли: 199 м2
- Размер: 17x8
- Фундамент: Дома с ленточным фундаментом
Отправьте свои контакты и мы расчитаем вам смету
Скорее всего вам подойдут следующие проекты домов:
Проект одноэтажного дома Дом id-56326
Семья с одним ребенком
Дом подходит для:
Дом подходит для:
Проект одноэтажного дома Дом id-47427
Семья с двумя детьми
Дом подходит для:
Дом подходит для:
Проект одноэтажного дома Дом id-32553
Семья с одним ребенком
Дом подходит для:
Дом подходит для:



















