Проект одноэтажного дома Дом id-68082
Дом подходит для:
Площадь
353 м 2
Размер дома:
21x24
Этажей:
1
Спален:
5
Санузел:
3
Гараж:
Нет
Баня:
Нет
Терраса:
Нет
Панорамные окна:
Нет
Мастер-спальня:
Нет
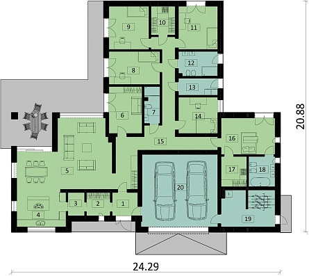
Планировка
Фасады
О проекте
Здесь нет «холодных» зон — только комфортный микроклимат.Всё продумано на 353 м²: от прихожей до спальни. 228 м² — золотая середина между уютом и свободой. 3 санузла — когда всё на своих местах. В доме предусмотрено 5 спален, что важно для комфорта. металлочерепица придаёт дому выразительность и надёжность. Выбор газобетона обусловлен его теплоизоляционными свойствами.Гарантии: 16 лет гарантии
Характеристики
- Общая площадь: 353 м2
- Жилая площадь: 228 м2
- Количество этажей: 1
- Гараж: На 2 машины
- Площадь кровли: 506,06 м2
- Размер: 21x24
- Фундамент: Дома с ленточным фундаментом
Отправьте свои контакты и мы расчитаем вам смету
Скорее всего вам подойдут следующие проекты домов:
Проект одноэтажного дома Дом id-114997
Для большой семьи
Дом подходит для:
Дом подходит для:
Проект одноэтажного дома Дом id-83532
Для большой семьи
Дом подходит для:
Дом подходит для:












