Проект двухэтажного дома Дом id-68417
Дом подходит для:
Площадь
493 м 2
Размер дома:
20x20
Этажей:
2
Спален:
4
Санузел:
2
Гараж:
Нет
Баня:
Нет
Терраса:
Нет
Панорамные окна:
Нет
Мастер-спальня:
Нет
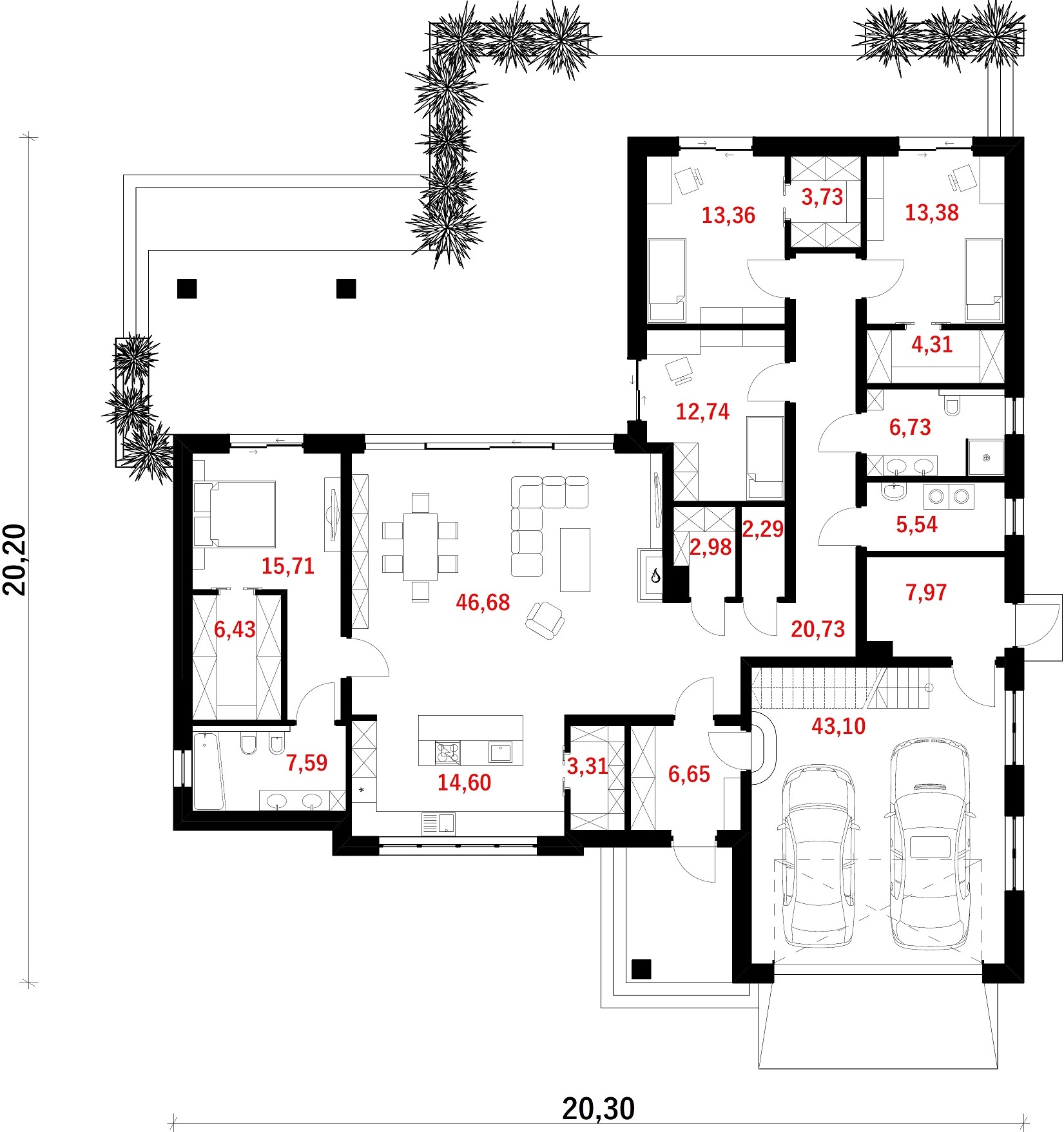
Планировка
Фасады
О проекте
Двухэтажный дом площадью 181 м² с четырьмя комнатами и двумя санузлами отлично подойдёт для семьи среднего размера. Гараж на две машины добавляет практичности для владельцев авто. Просторные помещения позволяют удобно зонировать пространство для отдыха и работы. Дом выполнен из газобетона и металлочерепицы, что обеспечивает надёжность и энергоэффективность.Гарантии: 16 лет гарантии
Характеристики
- Общая площадь: 493 м2
- Жилая площадь: 181 м2
- Количество этажей: 2
- Гараж: На 2 машины
- Размер: 20x20
- Фундамент: Дома с ленточным фундаментом
Отправьте свои контакты и мы расчитаем вам смету
Скорее всего вам подойдут следующие проекты домов:
Проект двухэтажного дома Дом id-117396
Для большой семьи
Дом подходит для:
Дом подходит для:
Проект двухэтажного дома Дом id-124360
Для большой семьи
Дом подходит для:
Дом подходит для:
Проект двухэтажного дома Дом id-112234
Для большой семьи
Дом подходит для:
Дом подходит для:


























