Ваш город:

Проект одноэтажного дома Дом id-74119

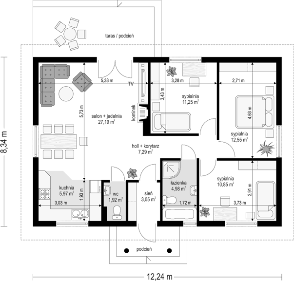
Площадь: 102 м2
Размер: 12x8
Дом подходит для:
Семья с двумя детьми
Этажей:
1
Стены:
Кровля:
Металлочерепица
Цена:
Оставить заявку
Площадь
102 м 2
Размер дома:
12x8
Этажей:
1
Спален:
3
Санузел:
2
Гараж:
Нет
Баня:
Нет
Терраса:
Нет
Панорамные окна:
Нет
Мастер-спальня:
Нет
Фасады
Характеристики
  • Общая площадь: 102 м2
  • Жилая площадь: 88 м2
  • Количество этажей: 1
  • Гараж: Без гаража
  • Площадь кровли: 162 м2
  • Размер: 12x8
  • Фундамент: Дома с ленточным фундаментом
Отправьте свои контакты и мы расчитаем вам смету
Прикрепить документ
Скорее всего вам подойдут следующие проекты домов:
Добавить к сравнению
Добавить в избранное
Изображение
Изображение
Изображение
Изображение
Изображение
Изображение
Изображение
Изображение
Изображение
Проект одноэтажного дома Дом id-115224
Площадь: 107 м2
Размер: 11x9
Дом подходит для:
Семья с одним ребенком
Дом подходит для:
Семья с одним ребенком
Добавить к сравнению
Добавить в избранное
Изображение
Изображение
Изображение
Изображение
Изображение
Изображение
Изображение
Изображение
Изображение
Проект одноэтажного дома Дом id-115261
Площадь: 117 м2
Размер: 11x11
Дом подходит для:
Семья с двумя детьми
Дом подходит для:
Семья с двумя детьми
Добавить к сравнению
Добавить в избранное
Изображение
Изображение
Изображение
Изображение
Изображение
Изображение
Изображение
Изображение
Изображение
Проект одноэтажного дома Дом id-115291
Площадь: 99 м2
Размер: 13x9
Дом подходит для:
Семья с одним ребенком
Дом подходит для:
Семья с одним ребенком