Проект двухэтажного дома Дом id-74760
Дом подходит для:
Площадь
422 м 2
Размер дома:
17x16
Этажей:
2
Спален:
5
Санузел:
3
Гараж:
Нет
Баня:
Нет
Терраса:
Нет
Панорамные окна:
Нет
Мастер-спальня:
Нет
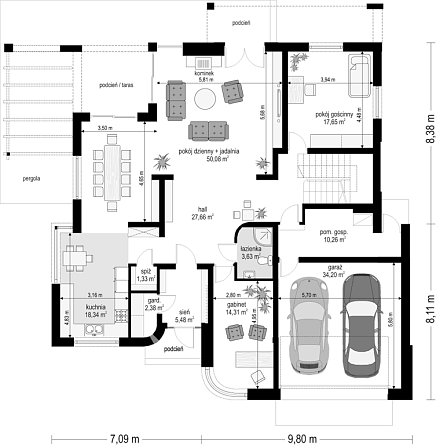
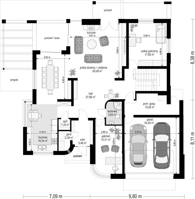
Планировка
Фасады
О проекте
Просторный двухэтажный дом площадью 299 м² включает пять комнат и три санузла, что идеально для большой семьи или любителей принимать гостей. Гараж на две машины обеспечивает удобство для автомобилистов и дополнительное место для хранения. Большие комнаты позволяют реализовать любые дизайнерские идеи и создать уютные зоны для отдыха и работы. Газобетонные стены и кровля из металлочерепицы гарантируют тепло и долговечность дома.Гарантии: 16 лет гарантии
Характеристики
- Общая площадь: 422 м2
- Жилая площадь: 299 м2
- Количество этажей: 2
- Гараж: На 2 машины
- Площадь кровли: 344,40 м2
- Размер: 17x16
- Фундамент: Дома с ленточным фундаментом
Отправьте свои контакты и мы расчитаем вам смету
Скорее всего вам подойдут следующие проекты домов:
Проект двухэтажного дома Дом id-112234
Для большой семьи
Дом подходит для:
Дом подходит для:
Проект двухэтажного дома Дом id-57002
Для большой семьи
Дом подходит для:
Дом подходит для:
Проект двухэтажного дома Дом id-94013
Для большой семьи
Дом подходит для:
Дом подходит для:























