Ваш город:

Проект одноэтажного дома Дом id-77547

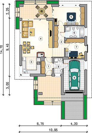
Площадь: 151 м2
Размер: 11x15
Дом подходит для:
Семья с одним ребенком
Этажей:
1
Стены:
Кровля:
Металлочерепица
Цена:
Оставить заявку
Площадь
151 м 2
Размер дома:
11x15
Этажей:
1
Спален:
2
Санузел:
1
Гараж:
Нет
Баня:
Нет
Терраса:
Нет
Панорамные окна:
Нет
Мастер-спальня:
Нет
Фасады
Характеристики
  • Общая площадь: 151 м2
  • Жилая площадь: 85 м2
  • Количество этажей: 1
  • Гараж: На 1 машину
  • Площадь кровли: 209 м2
  • Размер: 11x15
  • Фундамент: Дома с ленточным фундаментом
Отправьте свои контакты и мы расчитаем вам смету
Прикрепить документ
Скорее всего вам подойдут следующие проекты домов:
Добавить к сравнению
Добавить в избранное
Изображение
Изображение
Изображение
Изображение
Изображение
Проект одноэтажного дома Дом id-113502
Площадь: 132 м2
Размер: 11x13
Дом подходит для:
Семья с двумя детьми
Дом подходит для:
Семья с двумя детьми
Добавить к сравнению
Добавить в избранное
Изображение
Изображение
Изображение
Изображение
Изображение
Изображение
Изображение
Изображение
Изображение
Проект одноэтажного дома Дом id-120183
Площадь: 133 м2
Размер: 12x13
Дом подходит для:
Семья с двумя детьми
Дом подходит для:
Семья с двумя детьми
Добавить к сравнению
Добавить в избранное
Изображение
Изображение
Изображение
Изображение
Изображение
Проект одноэтажного дома Дом id-120579
Площадь: 126 м2
Размер: 14x9
Дом подходит для:
Семья с двумя детьми
Дом подходит для:
Семья с двумя детьми