Проект двухэтажного дома Дом id-78199
Дом подходит для:
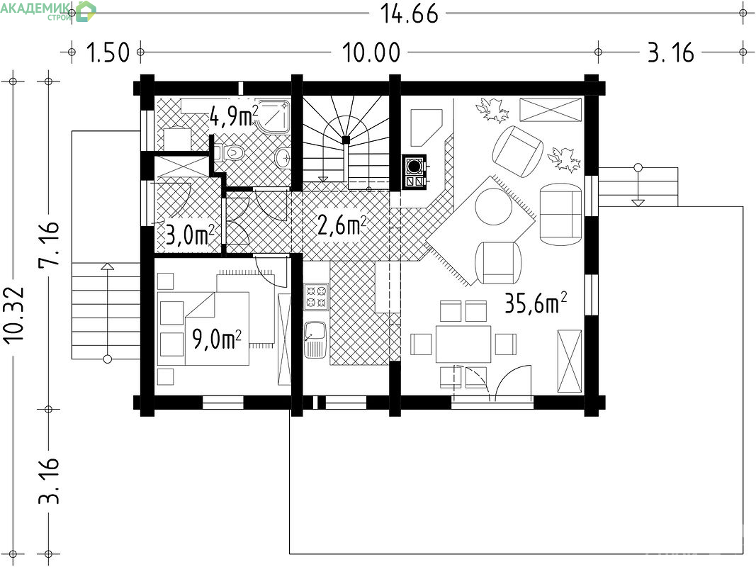
Площадь
234 м 2
Размер дома:
10x15
Этажей:
2
Спален:
4
Санузел:
2
Гараж:
Нет
Баня:
Нет
Терраса:
Нет
Панорамные окна:
Нет
Мастер-спальня:
Нет
Планировка
Характеристики
- Общая площадь: 234 м2
- Жилая площадь: 92 м2
- Количество этажей: 2
- Гараж: Без гаража
- Площадь кровли: 150 м2
- Размер: 10x15
- Фундамент: Дома с ленточным фундаментом
Отправьте свои контакты и мы расчитаем вам смету
Скорее всего вам подойдут следующие проекты домов:
Проект двухэтажного дома Дом id-77550
Для большой семьи
Дом подходит для:
Дом подходит для:
Проект двухэтажного дома Дом id-59065
Для большой семьи
Дом подходит для:
Дом подходит для:
Проект двухэтажного дома Дом id-55955
Для большой семьи
Дом подходит для:
Дом подходит для:

























