Проект двухэтажного дома Дом id-80201
Дом подходит для:
Площадь
406 м 2
Размер дома:
19x17
Этажей:
2
Спален:
4
Санузел:
3
Гараж:
Нет
Баня:
Нет
Терраса:
Нет
Панорамные окна:
Нет
Мастер-спальня:
Нет
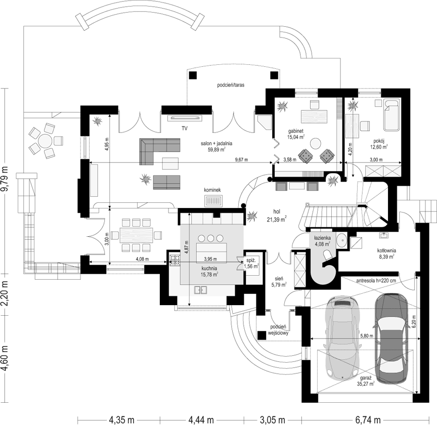
Планировка
Характеристики
- Общая площадь: 406 м2
- Жилая площадь: 286 м2
- Количество этажей: 2
- Гараж: На 2 машины
- Площадь кровли: 300,56 м2
- Размер: 19x17
- Фундамент: Дома с ленточным фундаментом
Отправьте свои контакты и мы расчитаем вам смету
Скорее всего вам подойдут следующие проекты домов:
Проект двухэтажного дома Дом id-112234
Для большой семьи
Дом подходит для:
Дом подходит для:
Проект двухэтажного дома Дом id-57002
Для большой семьи
Дом подходит для:
Дом подходит для:
Проект двухэтажного дома Дом id-84908
Для большой семьи
Дом подходит для:
Дом подходит для:






















