Проект одноэтажного дома Дом id-82181
Дом подходит для:
Площадь
190 м 2
Размер дома:
10x15
Этажей:
1
Спален:
3
Санузел:
2
Гараж:
Нет
Баня:
Нет
Терраса:
Нет
Панорамные окна:
Нет
Мастер-спальня:
Нет
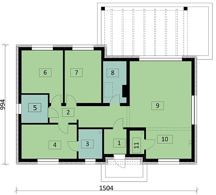
Планировка
Характеристики
- Общая площадь: 190 м2
- Жилая площадь: 105 м2
- Количество этажей: 1
- Гараж: Без гаража
- Площадь кровли: 234,93 м2
- Размер: 10x15
- Фундамент: Дома с ленточным фундаментом
Отправьте свои контакты и мы расчитаем вам смету
Скорее всего вам подойдут следующие проекты домов:
Проект одноэтажного дома Дом id-118944
Семья с двумя детьми
Дом подходит для:
Дом подходит для:
Проект одноэтажного дома Дом id-115515
Семья с двумя детьми
Дом подходит для:
Дом подходит для:
Проект одноэтажного дома Дом id-125846
Семья с двумя детьми
Дом подходит для:
Дом подходит для:


























