Проект двухэтажного дома Дом id-83018
Дом подходит для:
Площадь
259 м 2
Размер дома:
20x20
Этажей:
2
Спален:
4
Санузел:
3
Гараж:
Нет
Баня:
Нет
Терраса:
Нет
Панорамные окна:
Нет
Мастер-спальня:
Нет
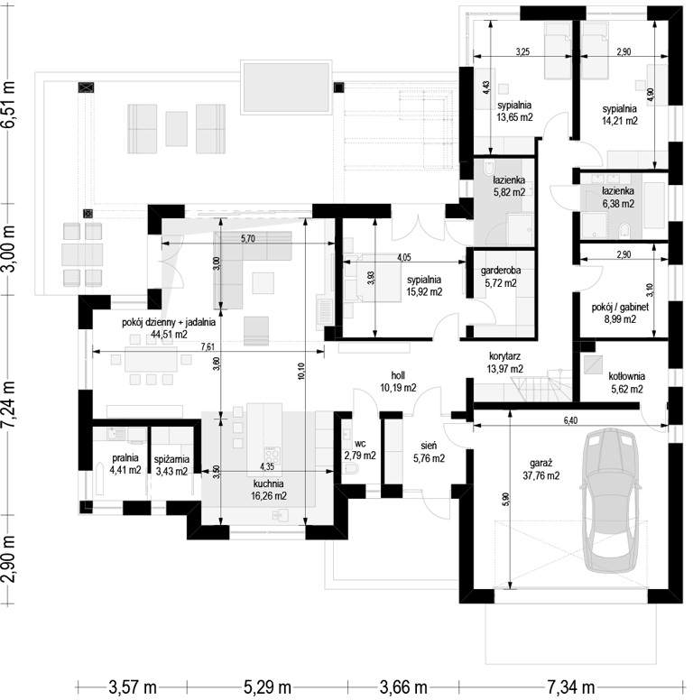
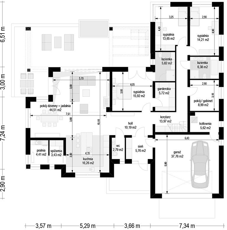
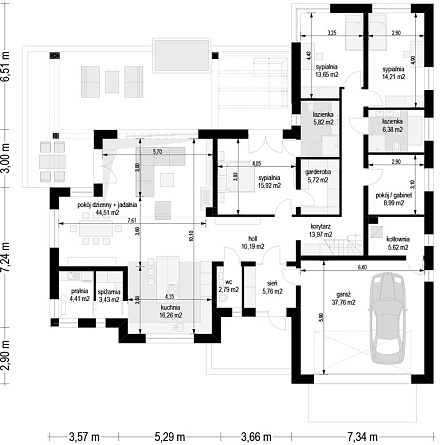
Планировка
Фасады
О проекте
Двухэтажный дом из газобетона площадью 259 м² рассчитан на четыре комнаты и три санузла. Гараж на две машины добавляет удобства для владельцев автомобилей. Просторная гостиная, уютные спальни и современная планировка делают этот дом отличным выбором для большой семьи.Гарантии: 16 лет гарантии
Характеристики
- Общая площадь: 259 м2
- Жилая площадь: 172 м2
- Количество этажей: 2
- Гараж: На 2 машины
- Площадь кровли: 417,72 м2
- Размер: 20x20
- Фундамент: Дома с ленточным фундаментом
Отправьте свои контакты и мы расчитаем вам смету
Скорее всего вам подойдут следующие проекты домов:
Проект двухэтажного дома Дом id-125895
Для большой семьи
Дом подходит для:
Дом подходит для:
Проект двухэтажного дома Дом id-35155
Для большой семьи
Дом подходит для:
Дом подходит для:
Проект двухэтажного дома Дом id-53582
Для большой семьи
Дом подходит для:
Дом подходит для:


























