Проект одноэтажного дома Дом id-84319
Дом подходит для:
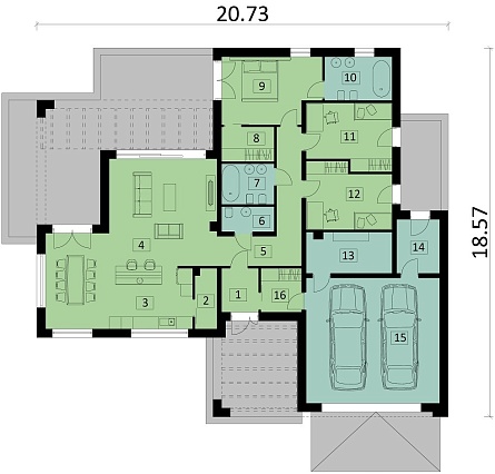
Площадь
255 м 2
Размер дома:
21x19
Этажей:
1
Спален:
3
Санузел:
3
Гараж:
Нет
Баня:
Нет
Терраса:
Нет
Панорамные окна:
Нет
Мастер-спальня:
Нет
Планировка
Характеристики
- Общая площадь: 255 м2
- Жилая площадь: 143 м2
- Количество этажей: 1
- Гараж: На 2 машины
- Площадь кровли: 276,91 м2
- Размер: 21x19
- Фундамент: Дома с ленточным фундаментом
Отправьте свои контакты и мы расчитаем вам смету
Скорее всего вам подойдут следующие проекты домов:
Проект одноэтажного дома Дом id-118227
Семья с двумя детьми
Дом подходит для:
Дом подходит для:
Проект одноэтажного дома Дом id-115171
Для большой семьи
Дом подходит для:
Дом подходит для:
Проект одноэтажного дома Дом id-117388
Для большой семьи
Дом подходит для:
Дом подходит для:






















