Проект одноэтажного дома Дом id-84348
Дом подходит для:
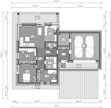
Площадь
310 м 2
Размер дома:
19x14
Этажей:
1
Спален:
3
Санузел:
2
Гараж:
Нет
Баня:
Нет
Терраса:
Нет
Панорамные окна:
Нет
Мастер-спальня:
Нет
Планировка
Характеристики
- Общая площадь: 310 м2
- Жилая площадь: 106 м2
- Количество этажей: 1
- Гараж: На 2 машины
- Площадь кровли: 221,15 м2
- Размер: 19x14
- Фундамент: Дома с ленточным фундаментом
Отправьте свои контакты и мы расчитаем вам смету
Скорее всего вам подойдут следующие проекты домов:
Проект одноэтажного дома Дом id-117989
Для большой семьи
Дом подходит для:
Дом подходит для:
Проект одноэтажного дома Дом id-118864
Для большой семьи
Дом подходит для:
Дом подходит для:
Проект одноэтажного дома Дом id-121976
Для большой семьи
Дом подходит для:
Дом подходит для:













