Проект двухэтажного дома Дом id-84995
Дом подходит для:
Площадь
390 м 2
Размер дома:
14x20
Этажей:
2
Спален:
4
Санузел:
3
Гараж:
Нет
Баня:
Нет
Терраса:
Нет
Панорамные окна:
Нет
Мастер-спальня:
Нет
Планировка
Фасады
О проекте
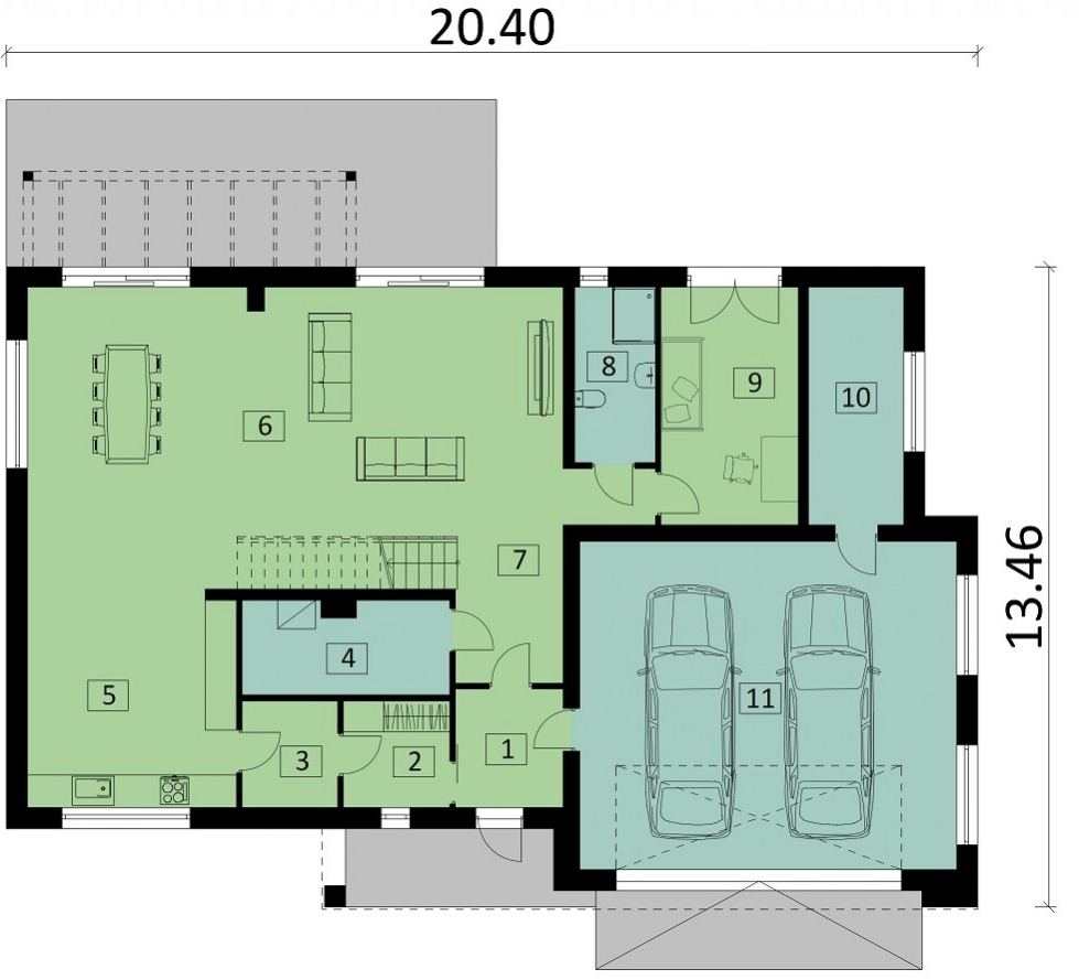
Двухэтажный дом площадью 246 м² рассчитан на четыре комнаты и три санузла, что идеально для семьи из 4-5 человек. Гараж на две машины добавляет удобства для автомобилистов. Просторные помещения позволяют создать зоны для отдыха и работы. Дом выполнен из газобетона и металлочерепицы для максимального комфорта.Гарантии: 16 лет гарантии
Характеристики
- Общая площадь: 390 м2
- Жилая площадь: 246 м2
- Количество этажей: 2
- Гараж: На 2 машины
- Площадь кровли: 192,60 м2
- Размер: 14x20
- Фундамент: Дома с ленточным фундаментом
Отправьте свои контакты и мы расчитаем вам смету
Скорее всего вам подойдут следующие проекты домов:
Проект двухэтажного дома Дом id-112234
Для большой семьи
Дом подходит для:
Дом подходит для:
Проект двухэтажного дома Дом id-57002
Для большой семьи
Дом подходит для:
Дом подходит для:
Проект двухэтажного дома Дом id-94013
Для большой семьи
Дом подходит для:
Дом подходит для:























