Проект двухэтажного дома Дом id-85506
Дом подходит для:
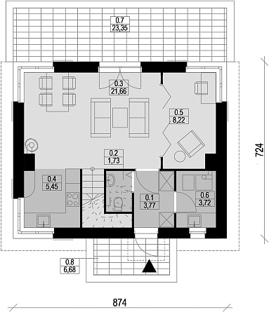
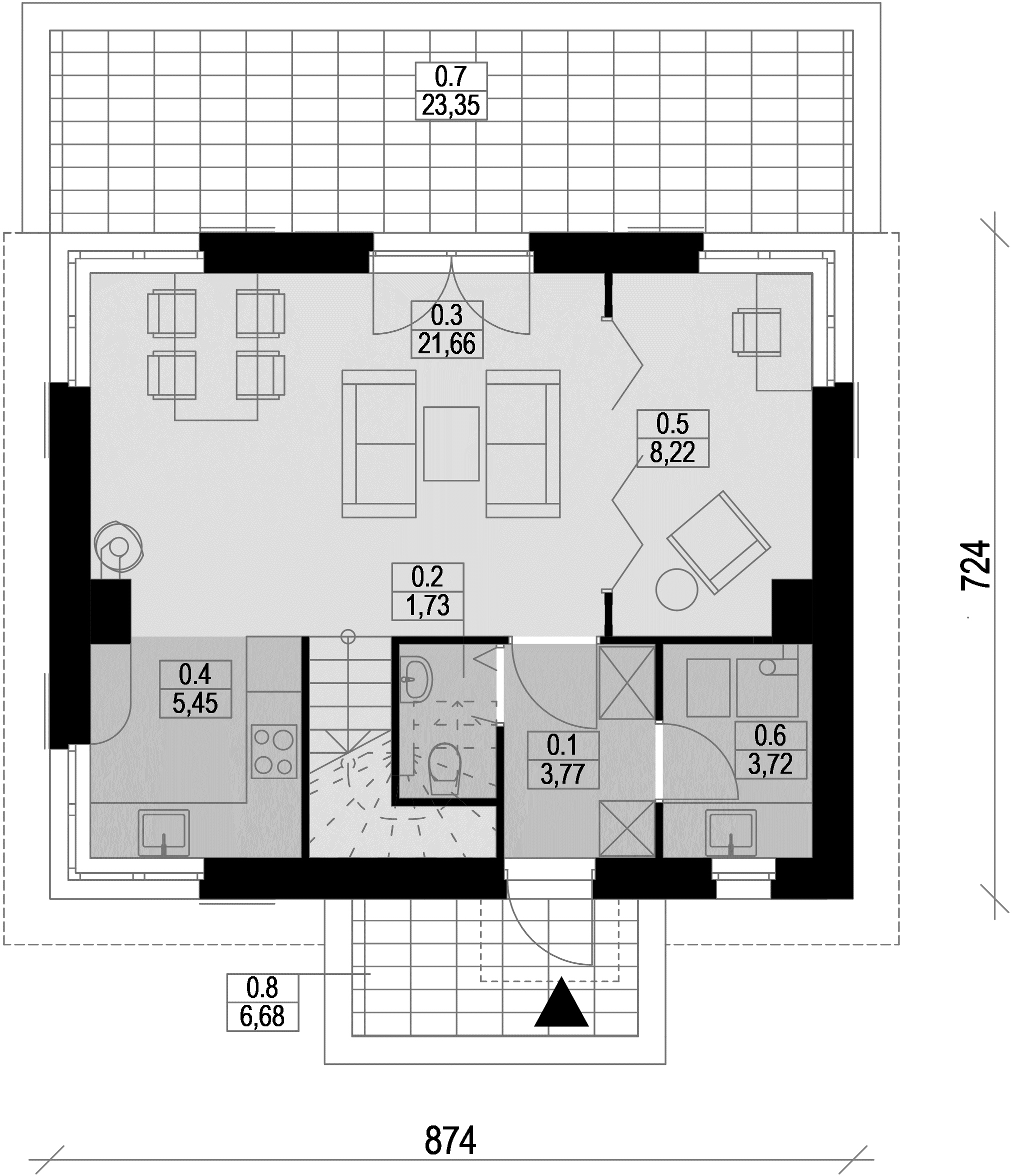
Площадь
126 м 2
Размер дома:
9x7
Этажей:
2
Спален:
4
Санузел:
2
Гараж:
Нет
Баня:
Нет
Терраса:
Нет
Панорамные окна:
Нет
Мастер-спальня:
Нет
Планировка
Характеристики
- Общая площадь: 126 м2
- Жилая площадь: 83 м2
- Количество этажей: 2
- Гараж: Без гаража
- Размер: 9x7
- Фундамент: Дома с ленточным фундаментом
Отправьте свои контакты и мы расчитаем вам смету
Скорее всего вам подойдут следующие проекты домов:
Проект двухэтажного дома Дом id-122591
Семья с двумя детьми
Дом подходит для:
Дом подходит для:
Проект двухэтажного дома Дом id-124063
Для большой семьи
Дом подходит для:
Дом подходит для:
Проект двухэтажного дома Дом id-32839
Семья с одним ребенком
Дом подходит для:
Дом подходит для:






















