Проект двухэтажного дома Дом id-86823
Дом подходит для:
Площадь
384 м 2
Размер дома:
31x22
Этажей:
2
Спален:
4
Санузел:
3
Гараж:
Нет
Баня:
Нет
Терраса:
Нет
Панорамные окна:
Нет
Мастер-спальня:
Нет
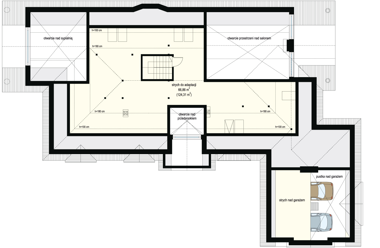
Планировка
Фасады
О проекте
Дом, в котором каждая деталь - результат вдумчивого подхода. Интерьер выстраивается вокруг 384 м² уюта и свободы. 258 м² — когда важно, чтобы было не много, но достаточно. 3 санузла облегчают распределение времени утром. В доме предусмотрено 4 спальни, что важно для комфорта. Конструкция из газобетона обеспечивает прочность и долговечность. Фундамент обеспечивает надежность и долговечность конструкции.Гарантии: 16 лет гарантии
Характеристики
- Общая площадь: 384 м2
- Жилая площадь: 258 м2
- Количество этажей: 2
- Гараж: На 2 машины
- Площадь кровли: 560,98 м2
- Размер: 31x22
- Фундамент: Дома с ленточным фундаментом
Отправьте свои контакты и мы расчитаем вам смету
Скорее всего вам подойдут следующие проекты домов:
Проект двухэтажного дома Дом id-124491
Для большой семьи
Дом подходит для:
Дом подходит для:
Дом подходит для:













