Проект двухэтажного дома Дом id-87346
Дом подходит для:
Площадь
415 м 2
Размер дома:
13x14
Этажей:
2
Спален:
5
Санузел:
3
Гараж:
Нет
Баня:
Нет
Терраса:
Нет
Панорамные окна:
Нет
Мастер-спальня:
Нет
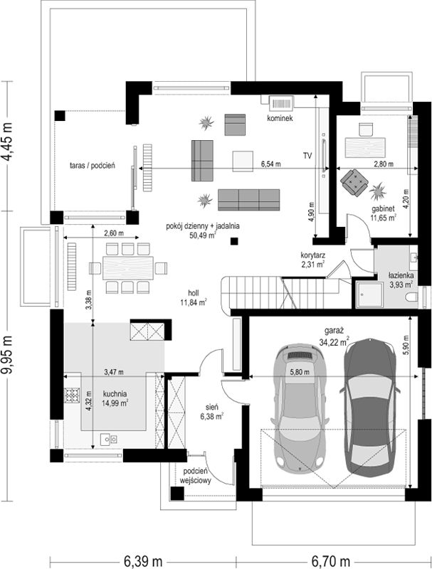
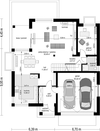
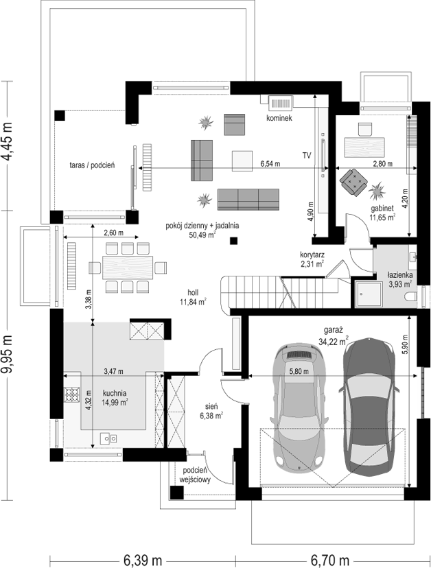
Планировка
Фасады
О проекте
Просторный двухэтажный дом площадью 415 м² рассчитан на пять комнат и три санузла. Гараж на две машины обеспечивает удобство для владельцев автомобилей. Большие помещения подойдут для организации просторных гостиных и уютных спален. Такой дом станет настоящей крепостью для большой семьи.Гарантии: 16 лет гарантии
Характеристики
- Общая площадь: 415 м2
- Жилая площадь: 267 м2
- Количество этажей: 2
- Гараж: На 2 машины
- Площадь кровли: 245,40 м2
- Размер: 13x14
- Фундамент: Дома с ленточным фундаментом
Отправьте свои контакты и мы расчитаем вам смету
Скорее всего вам подойдут следующие проекты домов:
Проект двухэтажного дома Дом id-115002
Для большой семьи
Дом подходит для:
Дом подходит для:
Проект двухэтажного дома Дом id-117188
Для большой семьи
Дом подходит для:
Дом подходит для:
Проект двухэтажного дома Дом id-111689
Для большой семьи
Дом подходит для:
Дом подходит для:




















