Проект одноэтажного дома Дом id-90306
Дом подходит для:
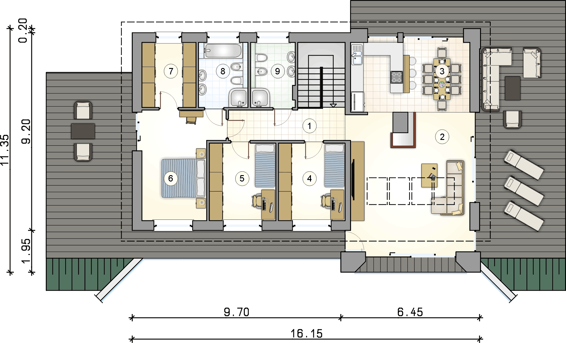
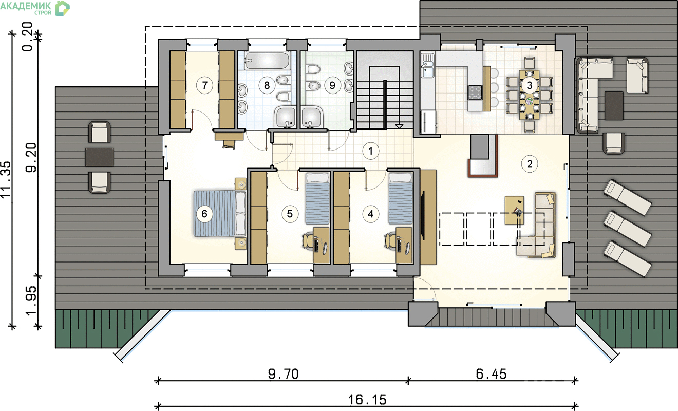
Площадь
309 м 2
Размер дома:
16x11
Этажей:
1
Спален:
3
Санузел:
2
Гараж:
Нет
Баня:
Нет
Терраса:
Нет
Панорамные окна:
Нет
Мастер-спальня:
Нет
Планировка
Характеристики
- Общая площадь: 309 м2
- Жилая площадь: 123 м2
- Количество этажей: 1
- Гараж: На 2 машины
- Площадь кровли: 202 м2
- Размер: 16x11
- Фундамент: Дома с ленточным фундаментом
Отправьте свои контакты и мы расчитаем вам смету
Скорее всего вам подойдут следующие проекты домов:
Проект одноэтажного дома Дом id-77167
Семья с двумя детьми
Дом подходит для:
Дом подходит для:
Проект одноэтажного дома Дом id-87637
Семья с двумя детьми
Дом подходит для:
Дом подходит для:
Проект одноэтажного дома Дом id-72514
Семья с двумя детьми
Дом подходит для:
Дом подходит для:


























