Проект двухэтажного дома Дом id-92646
Дом подходит для:
Площадь
318 м 2
Размер дома:
27x15
Этажей:
2
Спален:
3
Санузел:
3
Гараж:
Нет
Баня:
Нет
Терраса:
Нет
Панорамные окна:
Нет
Мастер-спальня:
Нет
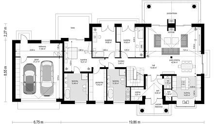
Планировка
Фасады
О проекте
Двухэтажный дом площадью 173 м² рассчитан на три комнаты и три санузла, что удобно для семьи из 3-4 человек. Гараж на две машины добавляет практичности для автомобилистов. Просторная гостиная и кухня создают уютное пространство для семейных вечеров. Дом выполнен из газобетона и металлочерепицы.Гарантии: 16 лет гарантии
Характеристики
- Общая площадь: 318 м2
- Жилая площадь: 173 м2
- Количество этажей: 2
- Гараж: На 2 машины
- Площадь кровли: 396,32 м2
- Размер: 27x15
- Фундамент: Дома с ленточным фундаментом
Отправьте свои контакты и мы расчитаем вам смету
Скорее всего вам подойдут следующие проекты домов:
Проект двухэтажного дома Дом id-57002
Для большой семьи
Дом подходит для:
Дом подходит для:
Проект двухэтажного дома Дом id-84908
Для большой семьи
Дом подходит для:
Дом подходит для:
Проект двухэтажного дома Дом id-35155
Для большой семьи
Дом подходит для:
Дом подходит для:






















