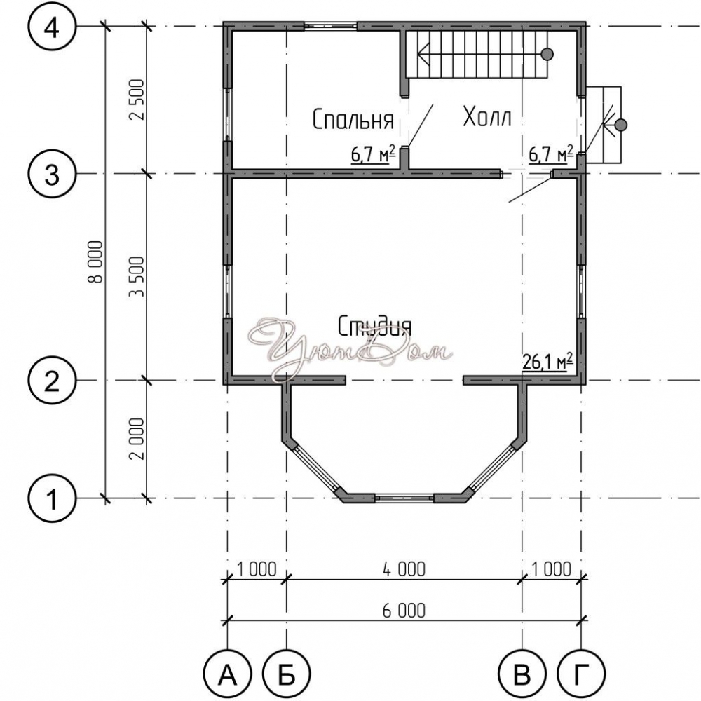
Проект одноэтажного дома Дом из бруса 6х8 - Костромской
Площадь
70 м 2
Размер дома:
6x8
Этажей:
1
Спален:
2
Санузел:
0
Гараж:
Нет
Баня:
Нет
Терраса:
Нет
Панорамные окна:
Нет
Мастер-спальня:
Нет
О проекте
Компактный дом из строганного бруса площадью 70 м² — уютное гнездышко для пары или небольшой семьи. Один этаж с двумя спальнями продуман до мелочей, а рубероидная кровля гармонично дополняет традиционный облик. Проект идеально подходит для дачного отдыха или постоянного проживания. Главные преимущества — экологичность материалов и камерная атмосфера.Характеристики
- Общая площадь: 70 м2
- Количество этажей: 1
- Стиль, разновидность: Дома в ином стиле
- Форма: Прямоугольные дома
- Тип кровли: Дома с двускатной крышей
- Отделка: Без отделки
- Размер: 6x8











