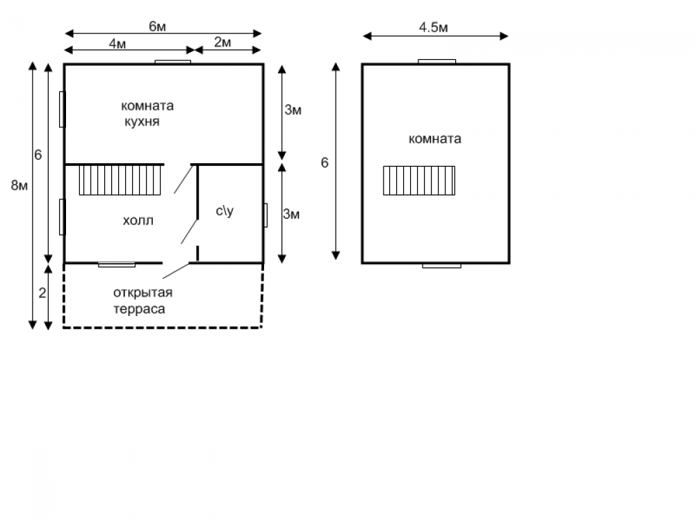
Проект одноэтажного дома Дом из бруса 6х8м с мансардой и террасой ПД-3
Площадь
72 м 2
Размер дома:
6x8
Этажей:
1
Спален:
0
Санузел:
0
Гараж:
Нет
Баня:
Нет
Терраса:
Нет
Панорамные окна:
Нет
Мастер-спальня:
Нет
О проекте
Архитектура, создающая настроение. 72 м² — дом, где всё работает на вас. Стены из Брус хорошо держат тепло и защищают от шума. Материал кровли — ондулин, что добавляет зданию индивидуальность. Архитектура выполнена в стиле дома в классическом стиле.Характеристики
- Общая площадь: 72 м2
- Количество этажей: 1
- Стиль, разновидность: Дома в ином стиле
- Тип кровли: Дома с иной крышей
- Отделка: Без отделки
- Размер: 6x8














