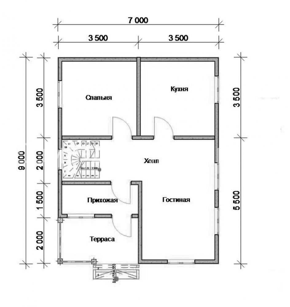
Проект двухэтажного дома Дом из бруса 7*9
Площадь
86 м 2
Размер дома:
7x9
Этажей:
2
Спален:
4
Санузел:
0
Гараж:
Нет
Баня:
Нет
Терраса:
Нет
Панорамные окна:
Нет
Мастер-спальня:
Нет
О проекте
Здание будто сошло с архитектурного рендера, но наполнилось детским смехом. Чёткая логика планировки на 66 м². Одноэтажная уютная планировка обеспечивает практичное распределение комнат. Количество спален — 2, делая планировку гибкой. В качестве кровли использована профнастил — материал, проверенный временем.Характеристики
- Общая площадь: 86 м2
- Количество этажей: 2
- Стиль, разновидность: Дома в ином стиле
- Форма: Прямоугольные дома
- Тип кровли: Дома с шатровой крышей
- Отделка: Без отделки
- Размер: 7x9












