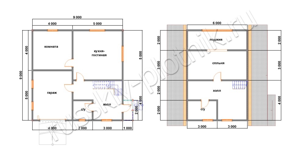
Проект одноэтажного дома Дом из бруса 9х9 с гаражем (42БР)
Площадь
135 м 2
Размер дома:
9x9
Этажей:
1
Спален:
2
Санузел:
0
Гараж:
Нет
Баня:
Нет
Терраса:
Нет
Панорамные окна:
Нет
Мастер-спальня:
Нет
О проекте
В этом доме гармонично слились актуальные архитектурные решения и тепло семейных отношений.Баланс функциональности и уюта в 96 м². Конструкция из бруса обеспечивает прочность и долговечность. В доме предусмотрено 2 спальни, что важно для комфорта. Архитектура выполнена в стиле финские дома.Характеристики
- Общая площадь: 135 м2
- Количество этажей: 1
- Стиль, разновидность: Дома в стиле Русский
- Форма: Прямоугольные дома
- Тип кровли: Дома с двускатной крышей
- Отделка: Без отделки
- Размер: 9x9














