Проект одноэтажного дома Дом из бруса ДБ-57 проект Ногинск
Площадь
140 м 2
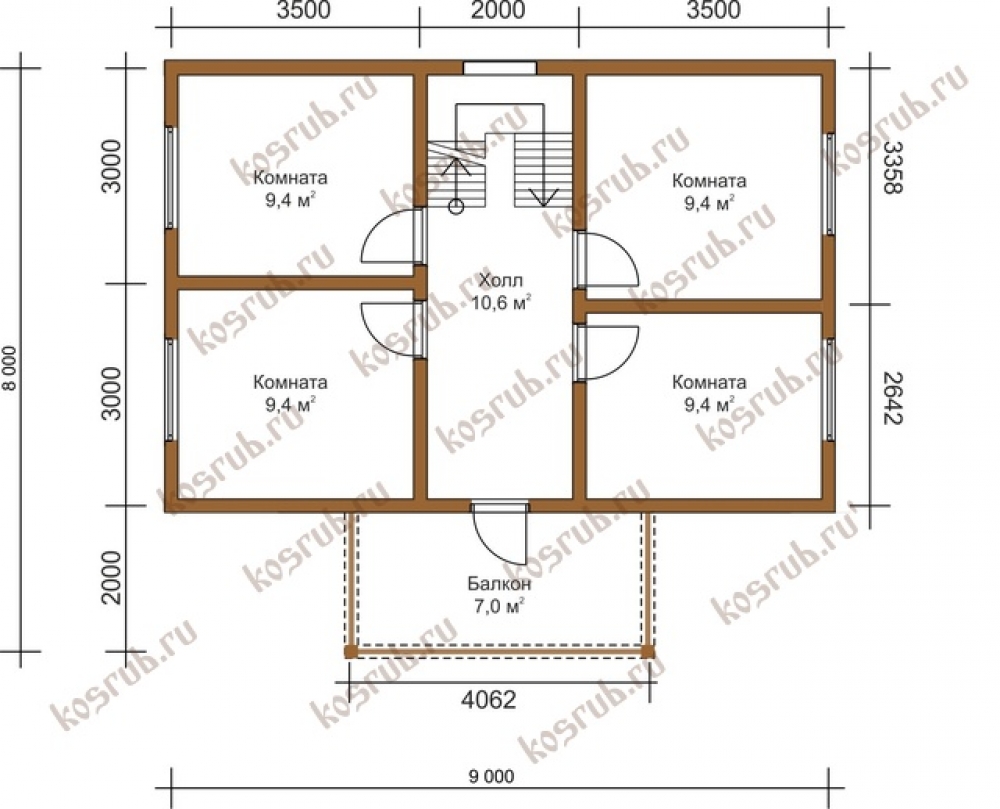
Размер дома:
8x9
Этажей:
1
Спален:
0
Санузел:
0
Гараж:
Нет
Баня:
Нет
Терраса:
Нет
Панорамные окна:
Нет
Мастер-спальня:
Нет
О проекте
Здесь каждая комната наполнена теплом. В этих 140 м² легко организовать рабочую и зону отдыха. В качестве кровли использована рубероид — материал, проверенный временем. Одноэтажная эргономичная планировка обеспечивает практичное распределение комнат. Выбор Бруса обусловлен его теплоизоляционными свойствами.Характеристики
- Общая площадь: 140 м2
- Количество этажей: 1
- Стиль, разновидность: Дома в ином стиле
- Тип кровли: Дома с иной крышей
- Отделка: Без отделки
- Размер: 8x9
Отправьте свои контакты и мы расчитаем вам смету
Скорее всего вам подойдут следующие проекты домов:
Дом подходит для:
Проект одноэтажного дома Проект брусового дома 7,5х8,5 ДБ-74 Лесстрой
Семья с одним ребенком
Дом подходит для:
Дом подходит для:
Проект одноэтажного дома Проект дома из бруса 8х11 ДБ-73 с террасой
Семья с одним ребенком
Дом подходит для:
Дом подходит для:












