Проект одноэтажного дома Дом из бруса ДБ-60 проект Терем
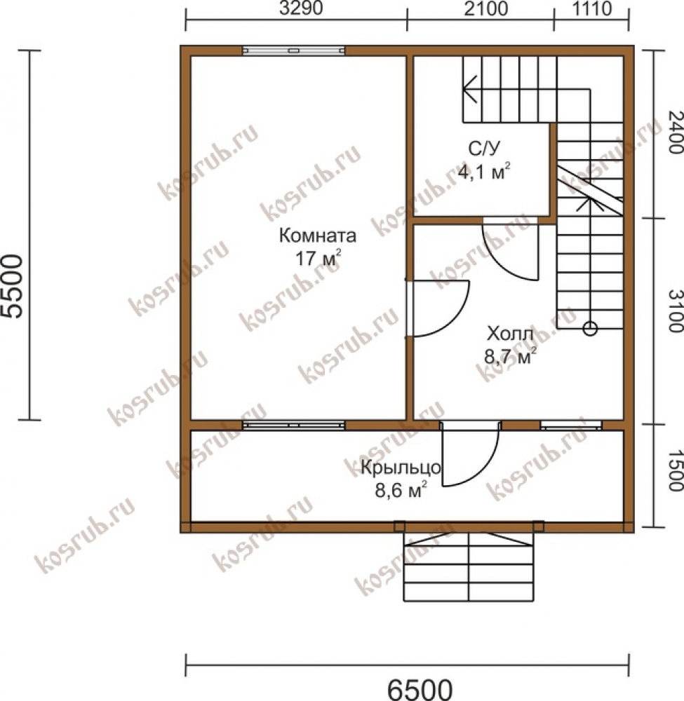
Площадь
100 м 2
Размер дома:
5x6
Этажей:
1
Спален:
0
Санузел:
0
Гараж:
Нет
Баня:
Нет
Терраса:
Нет
Панорамные окна:
Нет
Мастер-спальня:
Нет
О проекте
Дом, где система климат-контроля поддерживает идеальную температуру в любое время года. 100 м² — пространство, в котором легко дышать. В качестве кровли использована рубероид — материал, проверенный временем. Архитектура выполнена в стиле дома в классическом стиле. Одноэтажная современная планировка создаёт идеальные условия для жизни всей семьи.Характеристики
- Общая площадь: 100 м2
- Количество этажей: 1
- Стиль, разновидность: Дома в ином стиле
- Тип кровли: Дома с иной крышей
- Отделка: Без отделки
- Размер: 5x6
Отправьте свои контакты и мы расчитаем вам смету
Скорее всего вам подойдут следующие проекты домов:
Дом подходит для:
Дом подходит для:
Дом подходит для:










