Проект одноэтажного дома Дом из бруса ДБ-61 проект Зодчий
Площадь
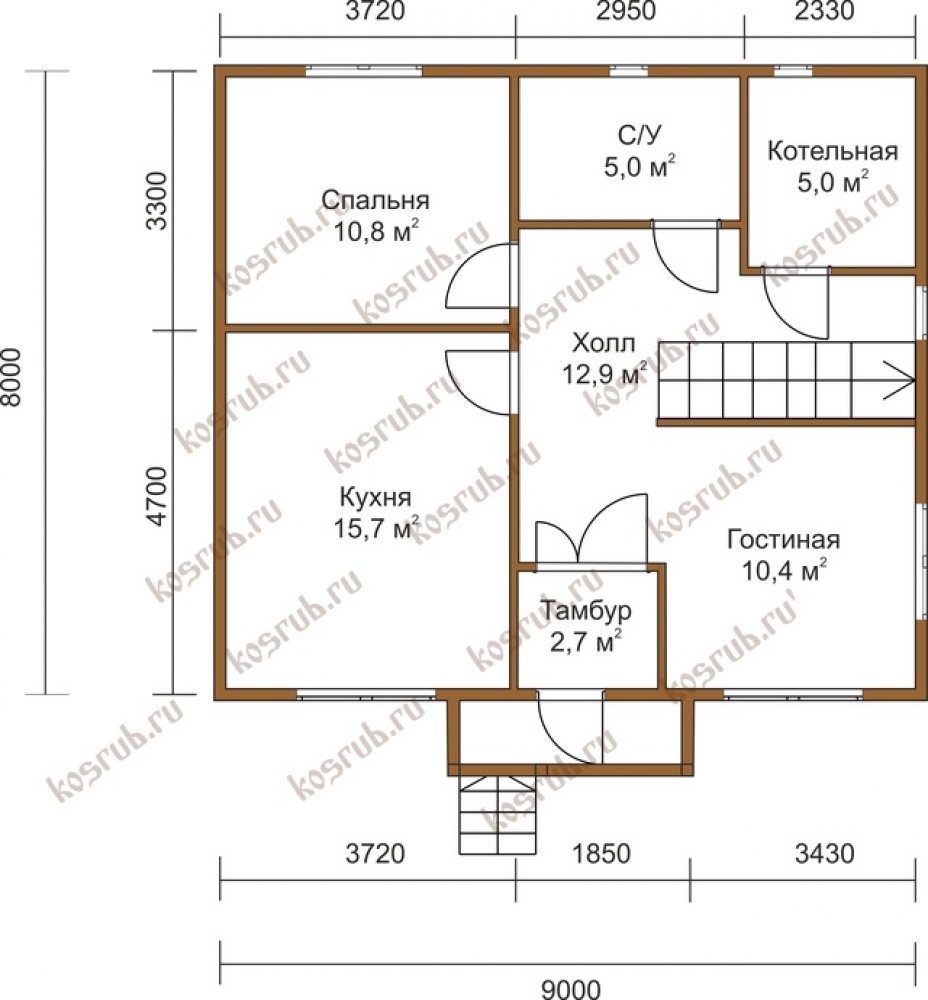
140 м 2
Размер дома:
8x9
Этажей:
1
Спален:
0
Санузел:
0
Гараж:
Нет
Баня:
Нет
Терраса:
Нет
Панорамные окна:
Нет
Мастер-спальня:
Нет
О проекте
Дом, где приятно проводить время в любую погоду. Площадь в 140 м² удовлетворит требования современной семьи. Крыша из рубероид подчёркивает современный облик дома. Архитектура выполнена в стиле дома в классическом стиле. Одноэтажная рациональная планировка разграничивает спальные и дневные помещения.Характеристики
- Общая площадь: 140 м2
- Количество этажей: 1
- Стиль, разновидность: Дома в ином стиле
- Тип кровли: Дома с иной крышей
- Отделка: Без отделки
- Размер: 8x9
Отправьте свои контакты и мы расчитаем вам смету
Скорее всего вам подойдут следующие проекты домов:
Дом подходит для:
Дом подходит для:
Дом подходит для:











