Проект двухэтажного дома Дом из двойного бруса Августин
Площадь
89 м 2
Размер дома:
Этажей:
2
Спален:
3
Санузел:
0
Гараж:
Нет
Баня:
Нет
Терраса:
Нет
Панорамные окна:
Нет
Мастер-спальня:
Нет
О проекте
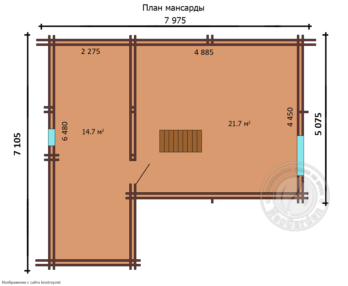
Брусовый дом площадью 89 м² сочетает в себе уют и функциональность. Натуральные материалы создают теплую и здоровую атмосферу. Пространство организовано так, чтобы удовлетворить все потребности жильцов. Это отличный вариант для загородного проживания.Характеристики
- Общая площадь: 89 м2
- Количество этажей: 2
- Стиль, разновидность: Дома в ином стиле
- Форма: Прямоугольные дома
- Тип кровли: Дома с двускатной крышей
- Отделка: Без отделки
Отправьте свои контакты и мы расчитаем вам смету
Скорее всего вам подойдут следующие проекты домов:
Дом подходит для:
Дом подходит для:
Дом подходит для:











