Проект двухэтажного дома Дом из двойного бруса Дориан
Площадь
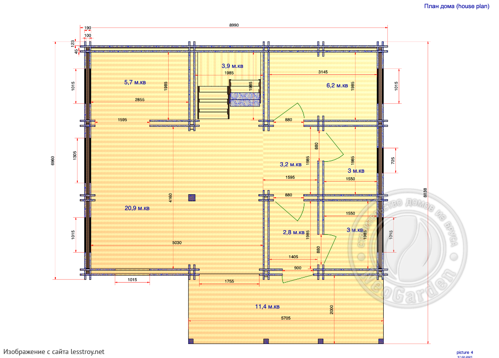
106 м 2
Размер дома:
Этажей:
2
Спален:
4
Санузел:
0
Гараж:
Нет
Баня:
Нет
Терраса:
Нет
Панорамные окна:
Нет
Мастер-спальня:
Нет
О проекте
Его форма не только радует глаз, но и делает жизнь удобнее.Дом из бруса площадью 106 м² — уютное и функциональное жилье. Два этажа с четырьмя спальнями обеспечивают комфортное проживание. Гостиная с камином создает теплую атмосферу, а терраса расширяет жилое пространство. Деревянные стены делают интерьер теплым и естественным.Характеристики
- Общая площадь: 106 м2
- Количество этажей: 2
- Стиль, разновидность: Дома в ином стиле
- Форма: Квадратные дома
- Тип кровли: Дома с многощипцовой крышей
- Отделка: Без отделки
Отправьте свои контакты и мы расчитаем вам смету
Скорее всего вам подойдут следующие проекты домов:
Дом подходит для:
Дом подходит для:
Дом подходит для:












