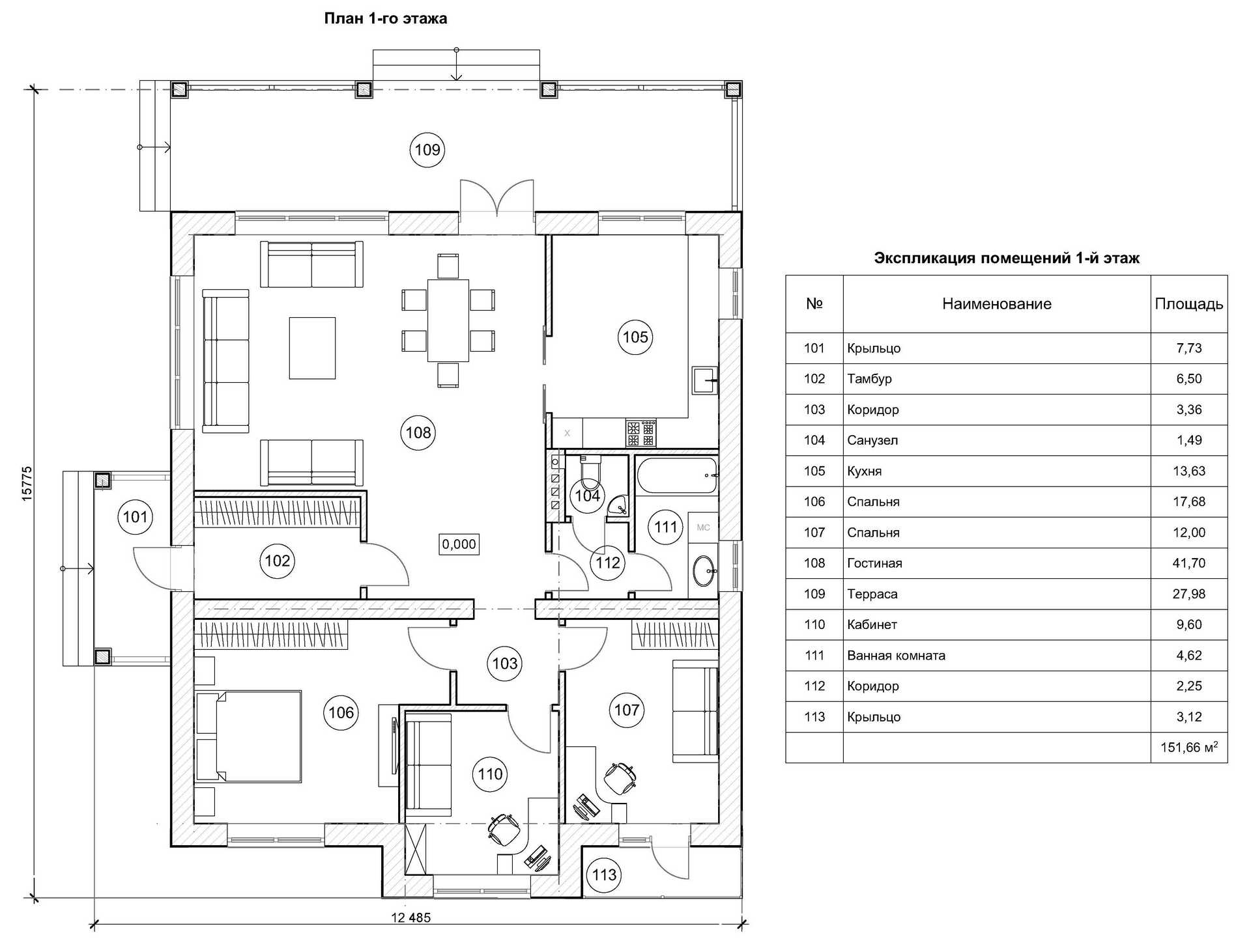
Проект одноэтажного дома дом из газобетона 113 кв.м.
Площадь
113 м 2
Размер дома:
13x17
Этажей:
1
Спален:
3
Санузел:
0
Гараж:
Нет
Баня:
Нет
Терраса:
Нет
Панорамные окна:
Нет
Мастер-спальня:
Нет
О проекте
Современный дом из газобетона площадью 113 м² отличается стильной архитектурой и функциональностью внутреннего пространства. Легкость материала и его теплоизоляционные свойства делают дом комфортным в любое время года. Пространство внутри рационально и удобно организовано. Идеальное жилье для семьи, предпочитающей современность и практичность.Характеристики
- Общая площадь: 113 м2
- Количество этажей: 1
- Стиль, разновидность: Дома в стиле Модерн
- Форма: Прямоугольные дома
- Тип кровли: Дома с четырехскатной крышей (вальмовой)
- Отделка: Без отделки
- Размер: 13x17
Отправьте свои контакты и мы расчитаем вам смету
Скорее всего вам подойдут следующие проекты домов:
Дом подходит для:
Проект одноэтажного дома 11-108
Семья с двумя детьми
Дом подходит для:
Дом подходит для:
Проект одноэтажного дома Печкин
Семья с двумя детьми
Дом подходит для:
Дом подходит для:












