Проект двухэтажного дома Дом из клееного бруса 231 кв.м.
Площадь
231 м 2
Размер дома:
12x16
Этажей:
2
Спален:
4
Санузел:
0
Гараж:
Нет
Баня:
Нет
Терраса:
Нет
Панорамные окна:
Нет
Мастер-спальня:
Нет
О проекте
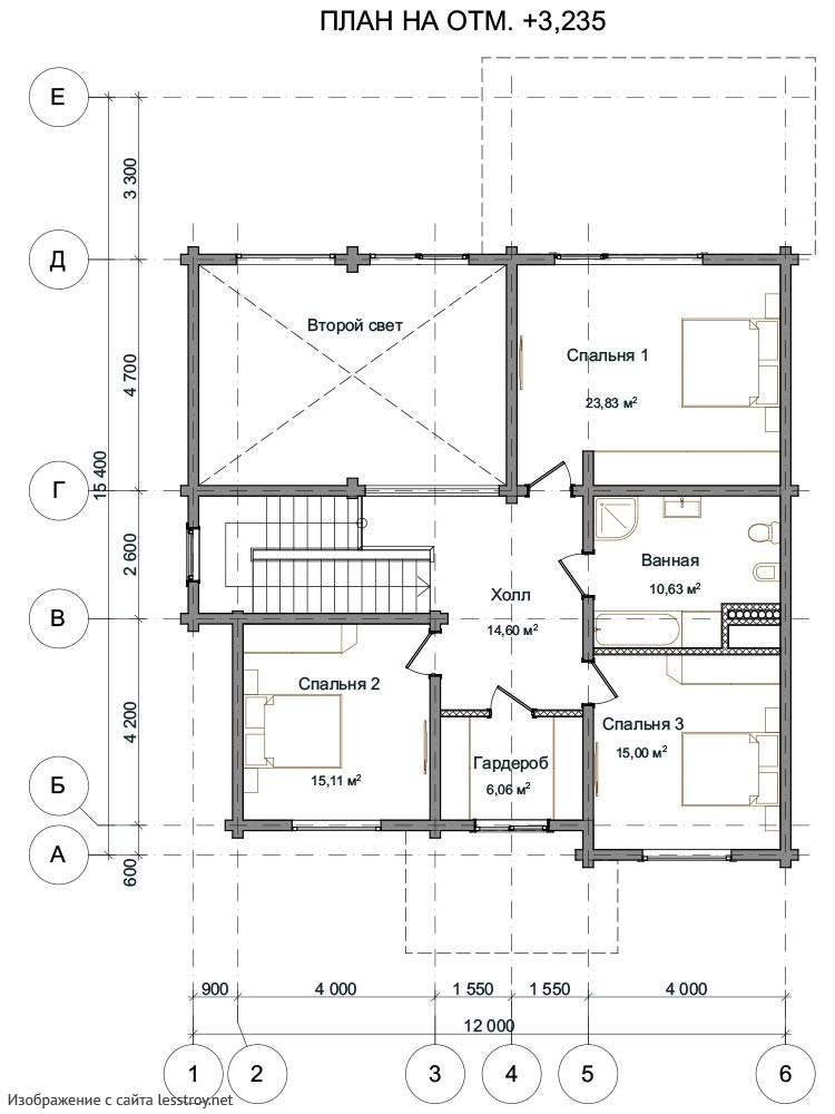
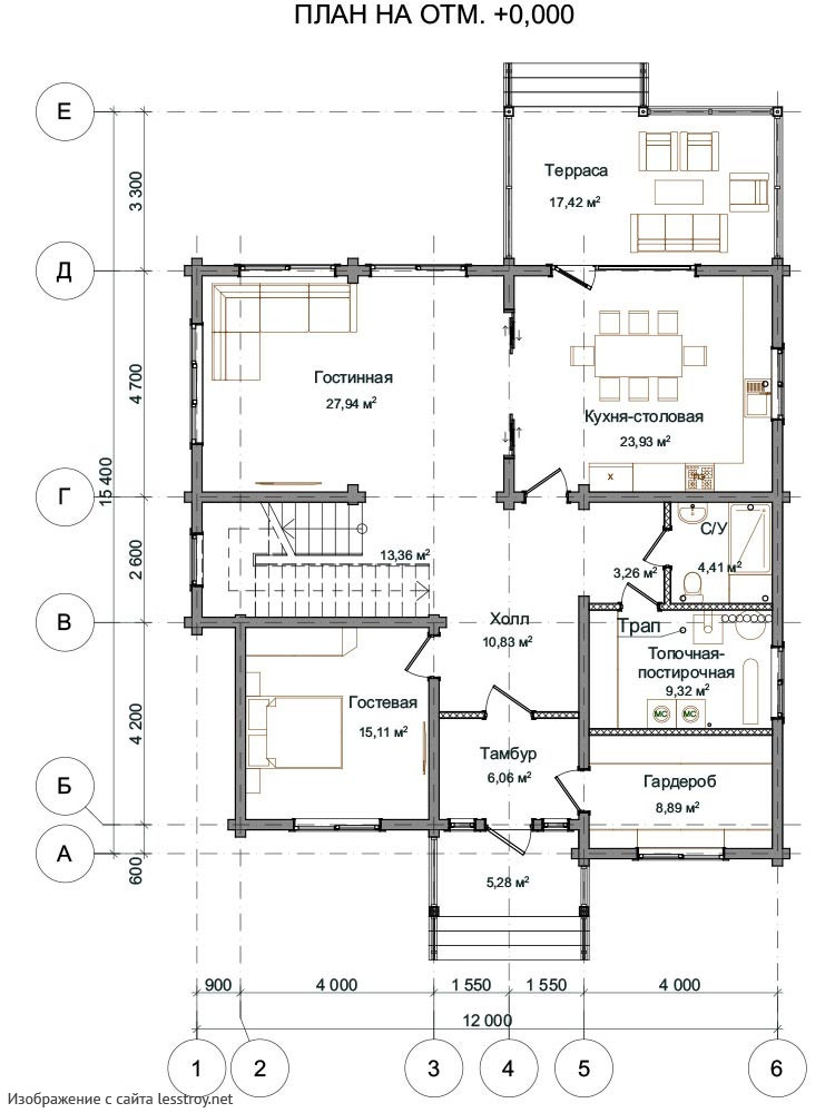
Этот дом поражает масштабом и продуманной архитектурой: 231 квадратный метр пространства — настоящая аренa для семейных событий и творческих идей. Качественный клеёный брус гарантирует долговечность и стабильную атмосферу в любую погоду. Планировка легко адаптируется под нужды большой семьи или владельцев, любящих яркие перемены в интерьере. Свет и уютные зоны отдыха органично переплетаются в этом доме. Это настоящее современное жилище для жизни в стиле свободы и вдохновения.Характеристики
- Общая площадь: 231 м2
- Количество этажей: 2
- Стиль, разновидность: Финские дома
- Форма: Прямоугольные дома
- Тип кровли: Дома с двускатной крышей
- Отделка: Без отделки
- Размер: 12x16
Отправьте свои контакты и мы расчитаем вам смету
Скорее всего вам подойдут следующие проекты домов:
Дом подходит для:
Дом подходит для:
Дом подходит для:












