Проект двухэтажного дома Дом из клееного бруса Вестерос
Площадь
197 м 2
Размер дома:
Этажей:
2
Спален:
4
Санузел:
0
Гараж:
Нет
Баня:
Нет
Терраса:
Нет
Панорамные окна:
Нет
Мастер-спальня:
Нет
О проекте
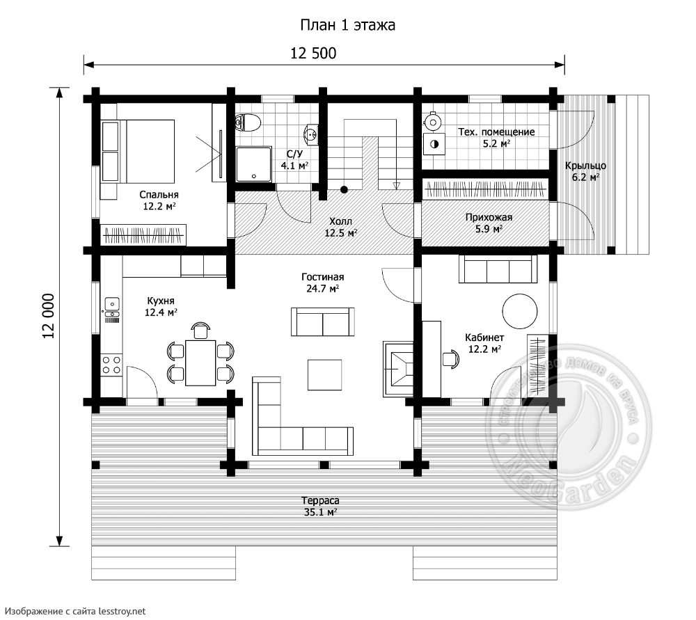
Дом из бруса площадью 197 м² воплощает в себе простор и элегантность. Деревянные стены обеспечивают отличную теплоизоляцию и комфорт. Проект включает множество светлых помещений, что делает его идеальным для семейного проживания. Это выбор тех, кто ценит качество и натуральность.Характеристики
- Общая площадь: 197 м2
- Количество этажей: 2
- Стиль, разновидность: Дома в ином стиле
- Форма: Прямоугольные дома
- Тип кровли: Дома с многощипцовой крышей
- Отделка: Без отделки
Отправьте свои контакты и мы расчитаем вам смету
Скорее всего вам подойдут следующие проекты домов:
Дом подходит для:
Дом подходит для:
Дом подходит для:











